Loading

A Family Beach Club A home inspired by the early beach clubs of the Florida and Caribbean coast

"We have always been drawn to the timeless and understated elegance of the Caribbean beach clubs from the 1950's."- client
A Caribbean "Village" emerges to define edges and exterior paces blurring the lines between the inside and outside, between covered porch and open sky.
The Design Process
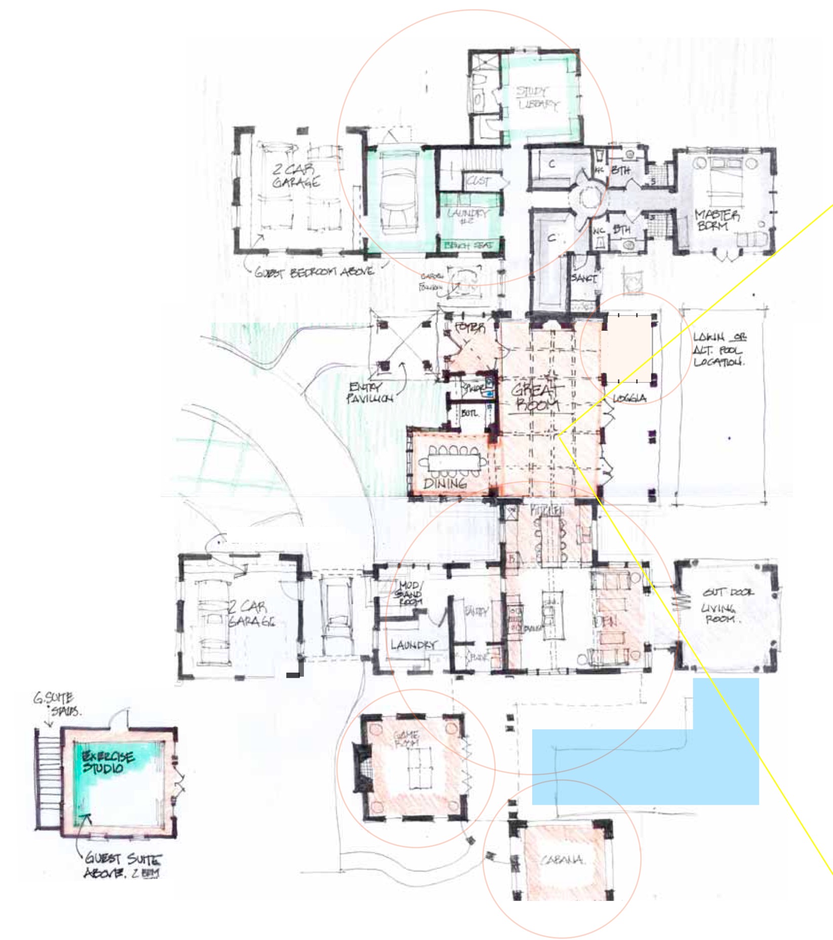
The Schematic Concept Diagram tells the story of a compound that evolved over time with varying influences
The welcoming nature of the traditional Caribbean street fabric of fence & gate is revealed within the Compound.
The Front Loggia engages the Entry Courtyard with an easy and casual transition into the Club Room
The Oceanfront
Various lawns and spaces on the ocean side offer respite from the elements of wind and sun and provide entertaining zones with unique qualities.
The Pool House Loggia thru the "Dog Trot" allows for a casual and informal entrance to the beach access and amenities.
Ocean Loggia off the Club Room

Private Carriage Court on the north - Allows the front yard and fence/gate entrance to become a Gargen of people and activity in lieu of a collection of vehicles.

A formal lawn terrace becomes an extension of the Club Room and Ocean Loggia
The courtyard door to the private Guest Suite above.

A framed view of the horizon greets guests thru the Pool House and offers a glimpse of what is to come.

A view to the South East
The Bath House
Casual activity spaces flank the dog trot
The interiors blend with exterior spaces to dissolve the lines between inside and out.
Natural light penetrates all sides of the spaces as a result of "exploded" plan - corners are revealed to allow openings into exterior spacesĀ 
A communal kitchen as the hub of formal and casual zones both interior and exterior.

The Dining Pavilion, open to the exterior on all sides, engages various exterior spaces and connects the overall plan organization.

Master Pavillion
Created By
Cronk Duch Architecture St Augustine - Jacksonville
Appreciate

Credits:

Photos by Carlos Domenech