Verde Commons November 2023

The Verde Commons 2-acre development is intended to contain 26 homes. Each home will be about 1,400-2000 sq. ft.

Progress Update

New driveway aprons are being installed at the three entrances to the community that will provide ADA access to the community.

Progress Images

November Aerial
September Ground Images

Site Plans

Site Plan
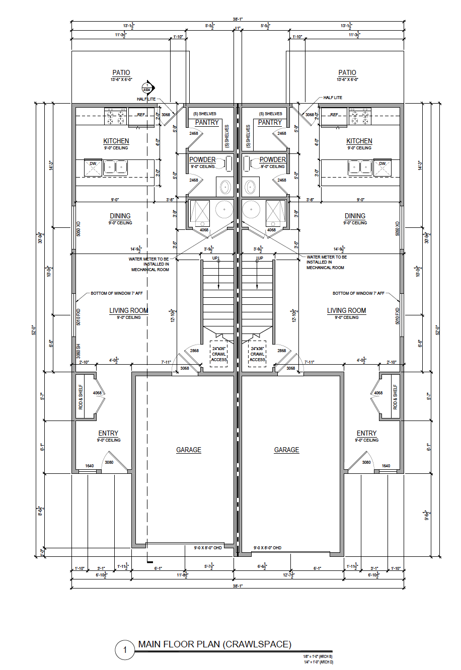
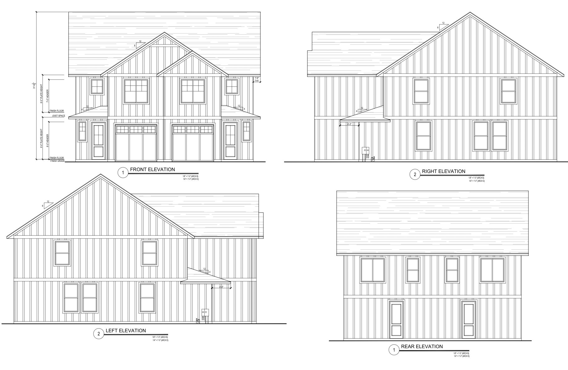
Elevations and Floor Plan Options (Click to View Larger Image)

Interactive Photos

As in other editions of this newsletter, we have prepared a series of intereactive photos for you to get a close-up look at the development's progress. These are 360-degree panorama photos shot with a drone. They allow you to click and drag to move around the image. you can also zoom in and out with your mouse or your fingers if you are using your phone. Simply click the button below to view these photos.

(Tip: If you click the white target shapes in the interactive photos, you'll move to different points around the project to get a detailed look at every part of the project. By looking up in the first photo you will see links to interactive photos from other months.)

Past Updates

Want to look back? Previous updates are here for your convenience:

May 2022 - July 2022 - August 2022 - September 2022 - October 2022 - November 2022 - December 2022 - January 2023 - February 2023 - March 2023 - April 2023 - May 2023 - June 2023 - July 2023 - August 2023 - September 2023 - October 2023