Loading

Forest Ridge Keston Park

jdm Estate Agents are delighted to present to the market this exciting opportunity to purchase a significant plot of approximately one acre in the exclusive and private Keston Park estate.

The existing property is substantial and imposing and has been stripped out internally in anticipation of redevelopment. Existing accommodation comprises over 5,500 sq foot.

Currently the property has consented planning permission for a reconfiguration, re-modelled roof space and extensions to ultimately provide increased floorspace.

Remodelled Ground Floor Accommodation
Remodelled First Floor Accommodation
Remodelled Roof Space

Additionally a variety of schemes have been drawn up (but not yet submitted) for a complete replacement dwelling to provide over 10,000 sq ft of luxurious accommodation which can be tailored to an incoming purchaser's specification.

External Elevations of one proposed scheme
Proposed Ground Floor Accommodation
Proposed First Floor Accommodation
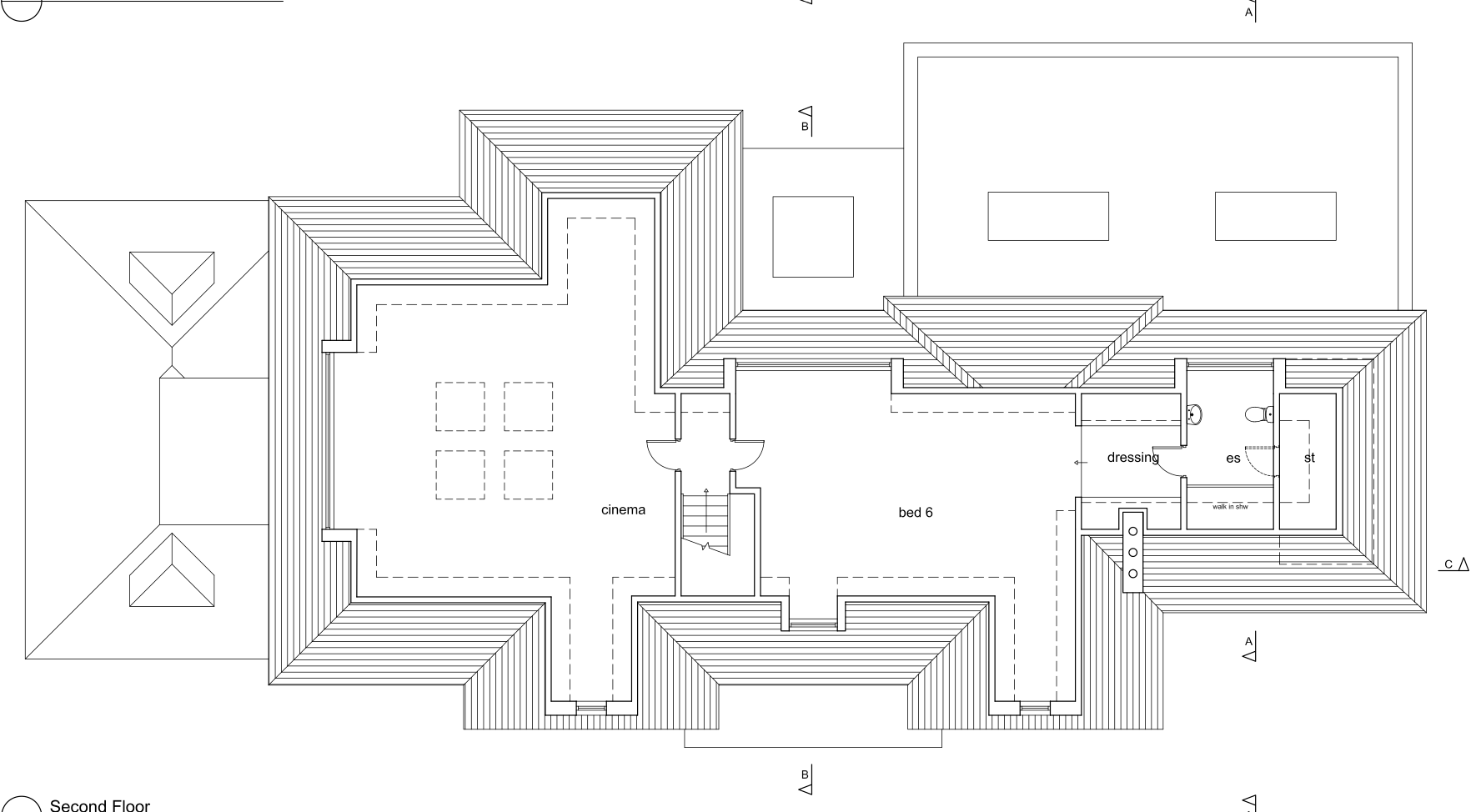
Proposed Second Floor Accommodation

With an impressive frontage and plot, sitting in the heart of Keston Park this is a rare opportunity to create a bespoke and luxurious home in this sought after location.

Location

Forest Ridge is situated within the exclusive and highly sought-after Keston Park, which is located close to Locksbottom village with its vast array of eateries, small boutiques and independent shops, coffee shops, pubs and bars.

Further more extensive shopping is available at The Glades in Bromley, Orpington High Street and Bluewater Shopping Centre.

Transport links are excellent with the A21 Hastings Road leading to the M25 (J4), in turn providing access to Gatwick and Heathrow Airports, the Channel Tunnel terminus (M20), Ebbsfleet International, the South Coast and Bluewater Shopping Centre. Fast and direct rail services are available to London from Orpington, Hayes and Bromley South stations.

Educational opportunities in the region are exceptional and include numerous highly regarded schools in both the state and private sectors including Ravenswood, St. Olave’s, Newstead Wood, Darrick Wood, Bromley High School for Girls, Bickley Park Boys’ School, Eltham College, Farringtons and Babington House.