Hôtel Capsules monArchitecture.me

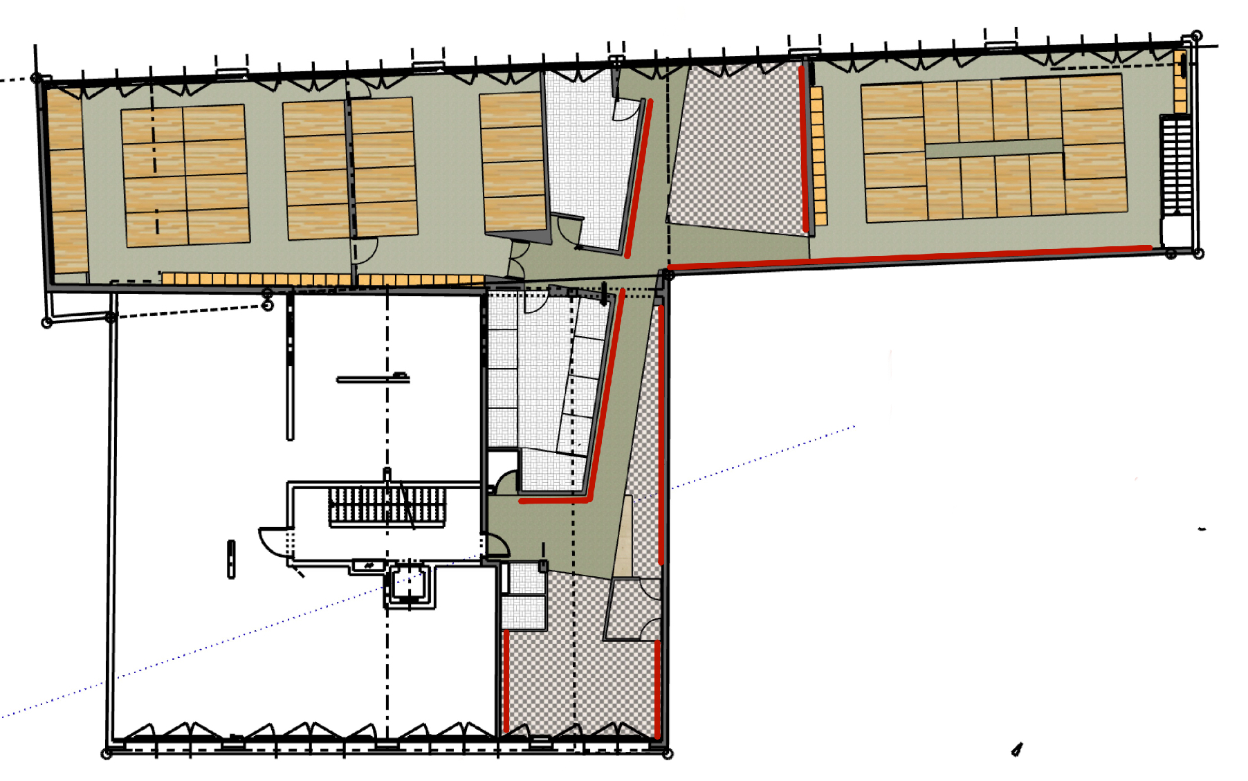
VARIANTES DISTRIBUTION

VARIANTE 1

VARIANTE 2

VARIANTE 3

NOTRE CONSEIL: VARIANTES 1 & 2

CONCEPT

Luminosité, fluidité visuelle, circulation

Circulation

Mobilier

Infographie

CAHIER DES CHARGES

78 CAPSULES - 78 UNITÉS LOCKERS

8 UNITÉS TOILETTES - 1 UNITÉS HANDICAP - SPA

RÉCEPTION - BUREAU - TOILETTE EMPLOYÉS

WORKSPACE - TOILETTE

2 SORTIES DE SECOURS