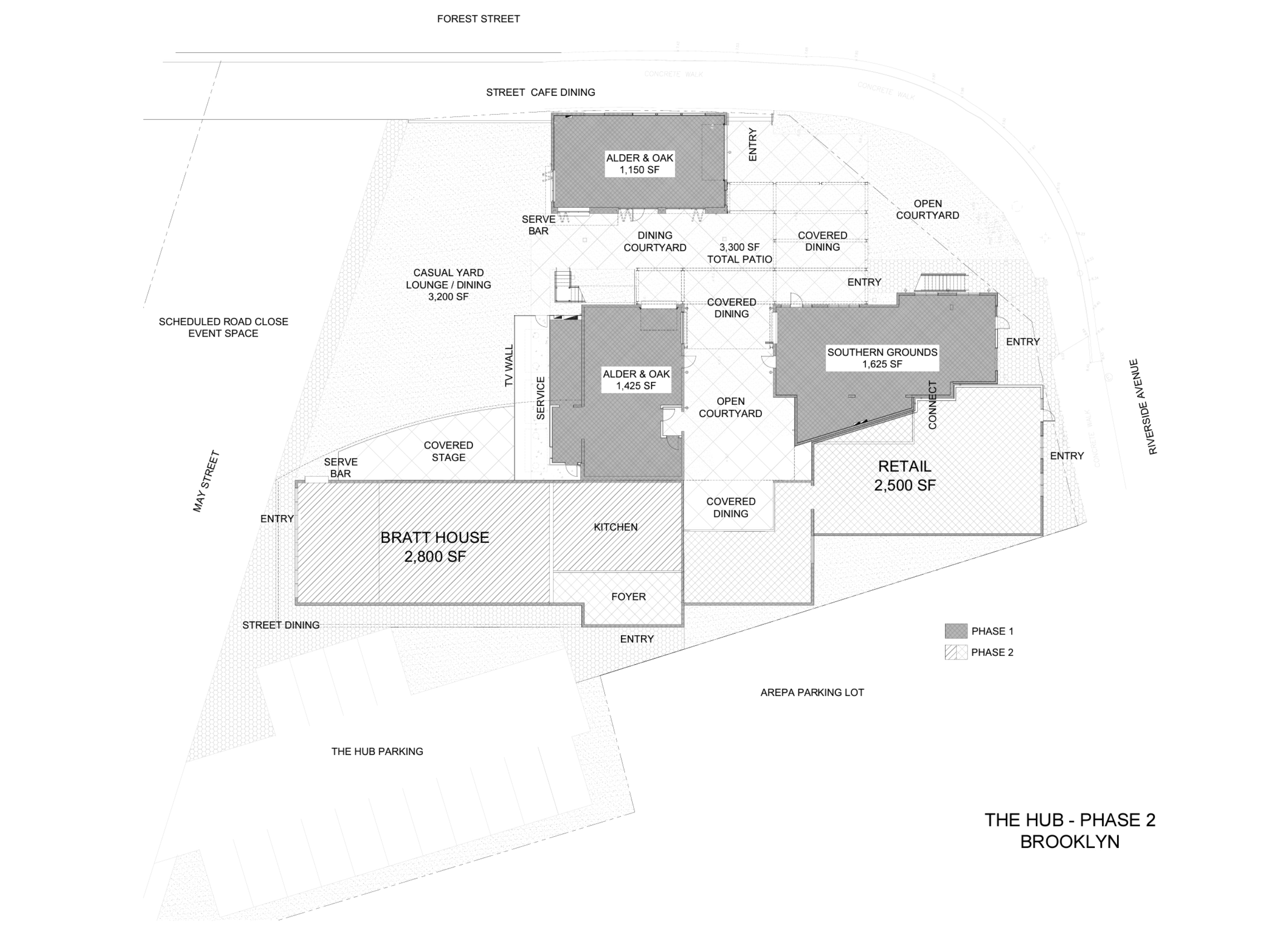
The Hub - Brooklyn: A Neighborhood Gathering Place Southern Grounds / Alder & Oak / Blueberry Bakery / CD+urban studio/SkyBar

WHAT

The HUB is a mixed-use urban oasis located in the center of the historic Brooklyn neighborhood in Jacksonville, Florida. It has been created to compliment the community’s original sense of scale and in an architectural language that speaks to the future while drawing inspiration from its industrial past. It occupies the corner of the last remaining block on Riverside Avenue with historical buildings - the true soul of Brooklyn - now surrounded by an advancing fabric of urban towers. The HUB is a quaint gathering place composed of open courtyards, shaded Loggias and roof-top terraces. It’s a place to meet friends for coffee and artisanal fare, a refuge from the office grind, a spot to refresh after walking the Emerald Trail, or perhaps cocktails and al-fresco dining before the evenings’ big event.

WHO

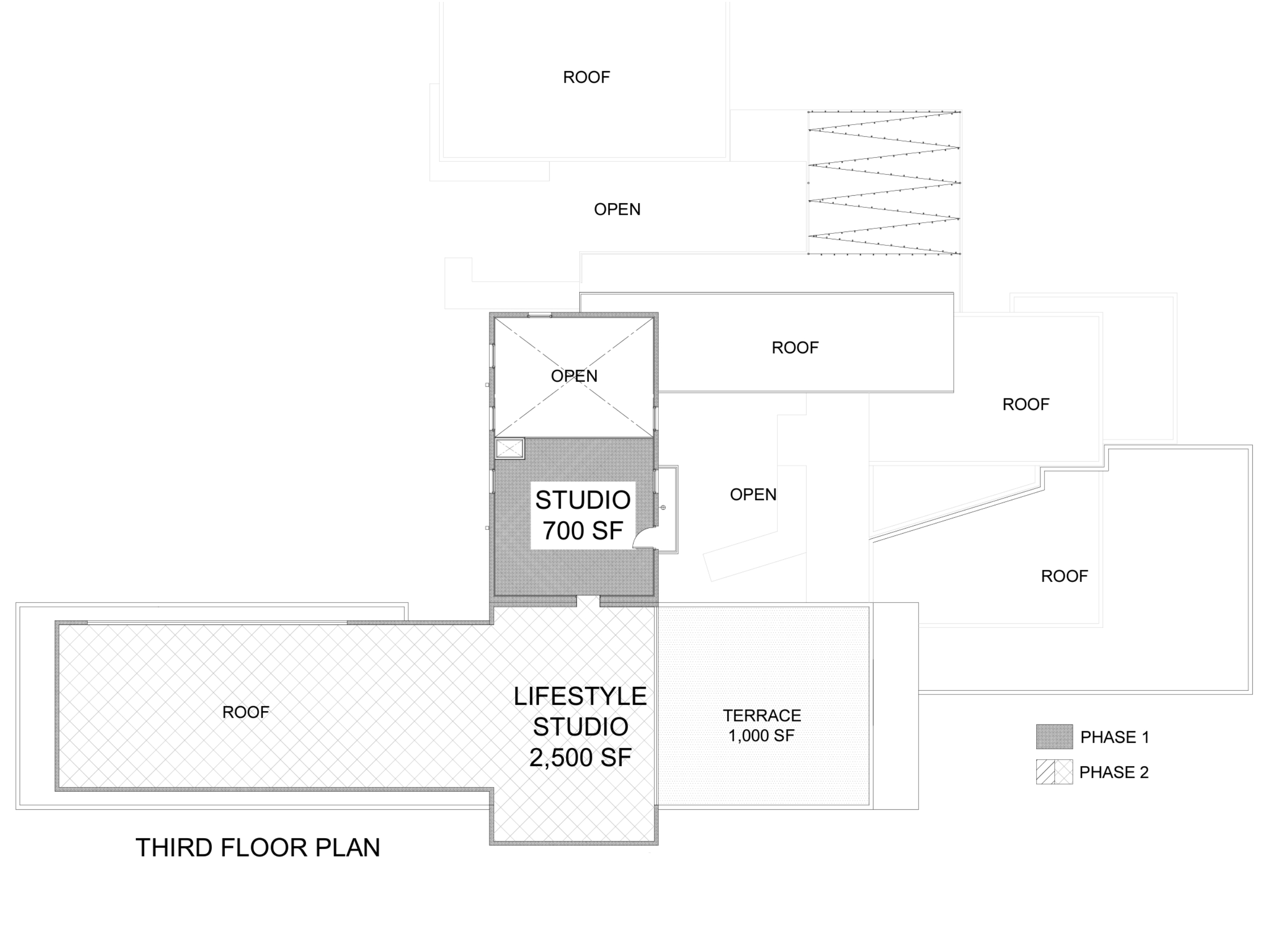
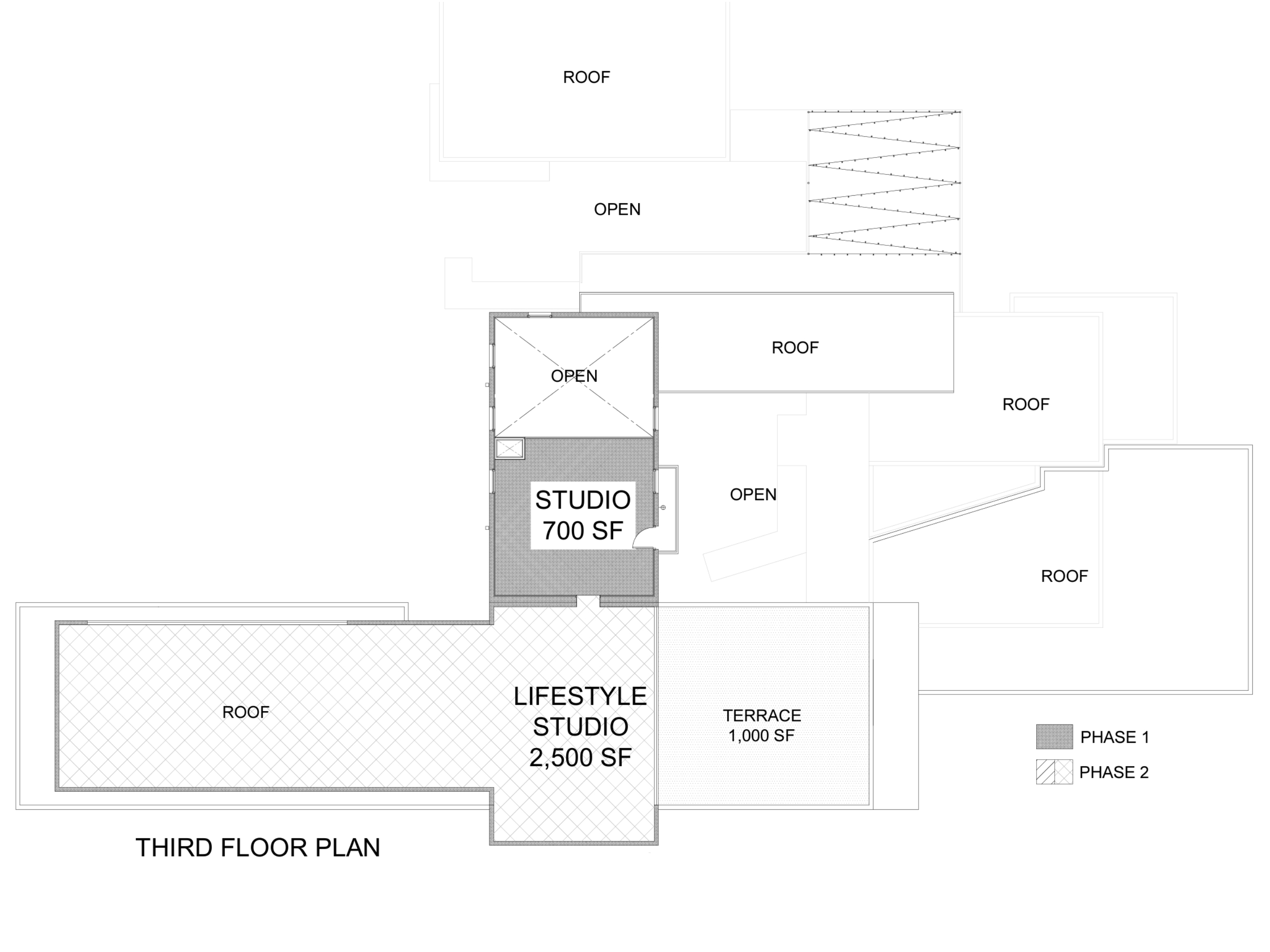
Southern Grounds and Alder & Oak will offer their unique brands of artisanal coffee and wood-fired seasonal fare in a unique urban environment. Indoor fast-casual seating and outside counter service share a covered exterior dining space, courtyard and cafe seating at the streets edge. A roof-top terrace is activated by The Sky Bar to provide views of the Jacksonville skyline, St John’s River and Emerald Necklace Trail . In addition to the restaurant spaces, Cronk Duch Architecture and CD+urban studio will create a collaborative design-centric Studio & Event Venue overlooking the courtyards and gathering spaces.

WHERE

WHY

The HUB Brooklyn proposes an architecture of human scale within the glass & steel character of the Riverside Avenue corporate landscape: a place for creativity and connection to the community. The concept is a scalable, sustainable and resilient gathering of buildings and outdoor spaces that address the changes in how we now work, play and dine. Less indoor dining and more shaded outdoor gathering space offer flexible, shared-use with less energy use. Parking in adjacent elevated structures reduce the asphalt footprint within the block and dockless mobilty zones allow for alternate transportation opportunities.

The HUB - A Neighborhood Center Point

Adjacent Projects Underway

A - Fidelity FIS World Headquarters
B - FIS Parking Structure & Retail
C - Vista Apartments & Retail
D - Marriott Residence Inn 135 room Hotel
E - Blue Cross / City Public Parking Structure
F - AC Hotel Brooklyn

Brooklyn Master Plan

The HUB is a continuation of an on-going design and planning intervention by CD+urban studio within the Brooklyn community to provide a hierarchy and priority of development to allow organic and sustainable growth.

A commissioned planning study / land acquisition exercise within Brooklyn fabric (CD+urban studio / Cronk Duch). The emphasis of the Master Plan is the activation of Dora Street by creating a secondary axis to the Park street infrastructure improvements (Red) with the McCoy’s Creek / Emerald Trail (Green). The Site Plan shows Riverside & Forest Corridor (Blue) - Emerald Trail/Riverwalk (Green)
Intersection of Riverside and Forest looking North towards Unity Plaza and Marriot Residence Inn.

Area Resources

Emerald necklace trail
Emerald Necklace Trail
The Hub activates the pedestrian link between the McCoys Creek/Emerald Trail and the Riverwalk Trail

Inspiration

Engagement to the street edges
Engagements to the Courtyard edges
Indoors blurring to Outdoors
An eclectic mix or natural materials and simple expressions of construction

Courtyard Dining & Gathering

Site

Design Concept - buildings and spaces arranged on the corner site to give a sense that the project evolved organically over time - perhaps an old automobile dealership or filling station converted over the years as the Brooklyn community developed.

Block Plan
View of The Hub from Unity Plaza Amphitheater

Adjacent Buildings

Existing buildings adjacent to site

Area Context

The current fabric and architectural language of what remains of historic commercial Brooklyn, and it’s adjacent neighborhoods, consists of human scaled buildings that address the pedestrian edges of the streets. There is a consistent typology in these buildings that create the character of Brooklyn and become the foundation for The Hub concept.

SoGro San Marco
SoGro Avondale

Precedence

Brooklyn’s automobile dealerships and related industrial businesses that were designed in the mid-century aesthetic, such as Catlin Studebaker and Terry Buick, made up much of the architectural fabric and scale of the commercial buildings in the neighborhood. The scale and materiality of these mid century buildings will influence the character and feel of the Hub buildings and spaces.

Architecture

Massing, texture, material and scale generate the spaces that create urban courtyards, where people are drawn to gather. Dappled light and shadow invite connection, creativity and community. The pattern of buildings at The Hub and its organic growth will encourage the development of adjacent parcels and in this transformative urban block.

North Elevation along Forest Street
Riverside Corner Elevation
North Facade along Forest Street
Corner Facade
Urban Courtyard for dining and gathering

Spaces

Al fresco dining
Southern Grounds walk-up coffee bar on the left and Alder & Oak dining counter in the middle
Entrance into the common Courtyard
Courtyard Al-fresco dining
Looking toward The Alder & Oak entry from inside the Courtyard
Main Dining Room and Bar

Landscape & Courtyard Inspiration

Landscape Concept Plan

Planning through Organic Growth

We take seriously the responsibilities of working and executing in the Now as The Hub is transforming from ideas to structures. But we also recognize the need to dream-forward so that the near decisions are influenced by the possible and continue the DNA of the root ideas for The Hub - creating and activating the community of Brooklyn and the adjacent neighborhoods.

Planned Growth & Expansion
Phase 2 Bier Garden, yard activity and Music Venue
Emerald Outfitters as a service and activity Hub to support the outdoor lifestyle community engaging in Riverwalk and Emerald trail.
Yes, that is “Blue Marley” - 1985 Landcrusier FJ60

Collaboration

Trusted Engineering Consultants