Loading

Derbyshire Historic Buildings Trust newsletter - august 2023

Chair's introduction

Dear Supporter,

Welcome to our August newsletter.

Whether you are on holiday or working here in the rain, take a moment to relax and enjoy the beautiful detail and innovative techniques employed in the final stages of the Wingfield Station restoration. Hopefully you will be motivated to attend one of our launch events to appreciate the quality first hand.

If you missed BBC Gardeners' World Live please do look back on ‘catch-up’ to witness the talent, skill and commitment of the Derby College students. Inspired and led by our project trustee, Peter Milner, and tutor Mike Baldwin, to win a Silver Merit Award with a miniature restoration of Wingfield Station as the focus of their garden

Indeed, talking of miniatures you will also be delighted to see who will tenant our Goods Shed!

There is news of other restoration projects too, at Sudbury and Bonsall, to retain your interest, as well as visits to Melbourne and Alstonfield.

As always, we welcome volunteers so if helping out at one of our events takes your fancy, please let us know.

Yours ever,

Derek Latham, Chair of DHBT

Cover Photo: Wingfield Restoration Garden, Gardeners' World Live, June 2023

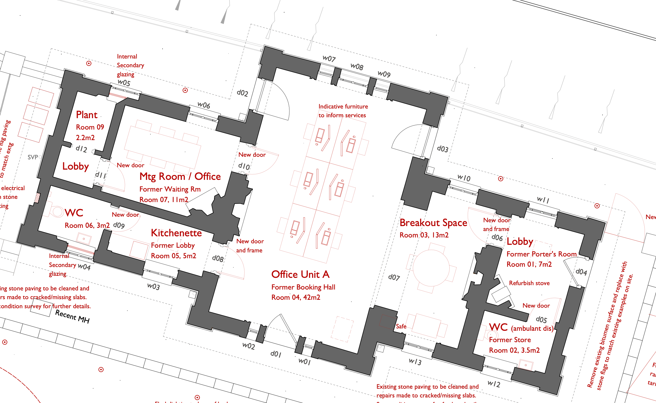
project progress at wingfield station

Thanks to local film maker, Gavin Repton, for producing this short film about the latest progress at Wingfield.

Work during June, July and August

Wingfield Station, July 2023
Work at Wingfield during June and July 2023

Wallpaper and Fireplaces

Bruce Fine Papers have now made the full colour block for the reproduction of the original 1840 wallpaper from the ladies' waiting room at Wingfield.

We agreed to the sample design and colour they created, and the rolls of paper are now on site ready to be hung - it is going to look fantastic!

The reproduction of the wallpaper that was in the Ladies' Waiting Room in 1840

The fireplaces were all stripped of paint during June and July.

Photos (Mel Morris Conservation) from 2020, showing the fireplaces in the Booking Hall, the Ladies' Waiting Room, the Ticket Office and the Station Porter’s Room.

We’re grateful to a local geologist who kindly identified the stone used in each case. The fireplace in the Porter’s Room is of relatively poor quality Carboniferous sandstone.

The other three fireplaces are cut from medium grey Carbonate Grainstone; essentially a limestone comprised from comminuted (reduced to minute particles) shell material, calcite fragments and a very small proportion of carbonate mud.

Photos showing the stripped Ladies' Waiting Room fireplace, a further detail from that one and the limestone of the Booking Hall.

Our contact has yet to identify the precise quarry location for the stones used, but suggested the limestone could possibly have come from a Crich quarry. There were many active local gritstone quarries in the locality.

Over the past three months Ackroyd Construction have also been working on the insulation, ceiling boarding and stud work (to form a WC) in the Parcel Shed; the foul sewer works; glazing to windows and window repairs.

Work from June and July 2023

Most of the ducting has now been laid and first fix electrical installations are well underway.

Photos from early July 2023

The modern concrete floors at Wingfield were carefully broken out ahead of a new breathable insulated floor going in.

The breaking out of the modern concrete floor

Following this, the layers of the new floor were installed.

The substance with a coal like appearance, below, is Geocell, which is actually a foam glass aggregate made from 99% recycled glass. It is an insulation material for underground use and is both economical and environmentally sound. It is surprisingly light weight and combines a drainage layer and insulation in a single product, thus reducing the depth required for floors etc.

Foam glass aggregate for insulation

The next layer is a geo-textile membrane, followed by geo-grid for the underfloor heating and a limecrete screed on top.

Bags of the foam glass aggregate

The photos below show the underfloor heating, floor service boxes and trunking within the limecrete screed for the new floor at Wingfield. You can also see here the geogrid and geotextile membrane which went over the foam glass aggregate base.

Underfloor heating
Limecrete screed

Later on this month, following the 28 day curing period for the floor, the plaster cornice work will be completed. The water connection is also booked in for this time. The window repairs and glazing are now complete and external door repairs are well underway.

join us - wingfield community launch programme - dates for the diary

With the capital works at Wingfield due to complete in October, we've planned an exciting programme of events to celebrate the occasion - and we'd love to see you there!

All events are free and further details will be available on our website and social media sites (@dhbtrust) in coming days. Pretty much all the activities are family friendly and some will be run in conjunction with friends such as Derbyshire Wildlife Trust. We want as many people as possible to visit Wingfield to enjoy the restoration and find out more about the work involved. In 2024, once the buildings have been occupied by new tenants, we are still committed to providing public access to the buildings on special occasions, such as Heritage Open Days.

We're now looking for volunteers to help us on each of these days - please let us know if you can spare a few hours - we're grateful to anyone who is able to offer some time. Please contact Victoria at if this sounds like you: wingfieldstationvolunteering@gmail.com

We are still fundraising for the final £30,000 of match funding so if, when you visit, you like what you see, please consider a donation as a sign of appreciation for the work of our dedicated team of craftsmen and volunteers.

You can donate to support our project at Wingfield Station here or scan the QR Code below. All donations will directly go towards the capital works.

Plans for our first tenant at wingfield

We have some exciting news about our first tenant at Wingfield Station. On completion of restoration, the Goods Shed (the building adjacent to the station - sometimes referred to as the Parcel Shed) is to house a new station visitor centre.

The Goods Shed at Wingfield

Opening in April 2024 the centre is going to feature:

• A working scale model of Wingfield station and goods yard set in 1947 - please see the photos of the model, which is currently under construction.

• Special themed operating days on the model railway such as famous British trains, luxury trains, Christmas trains and wartime trains.

• Display boards, photographs and artefacts of station life.

• Small cafe serving hot and cold drinks plus snacks.

• Toilet facilities.

• Souvenir shop.

Photos showing the model being created. The last photo is the interior of the Goods Shed.

The centre is fully accessible and is being funded and run as a charity by local volunteers. For further information about the centre, please contact John Abbott: wingfieldstation1947@gmail.com

A website for the centre is currently being developed, and there will also be a chance to see the model railway as part of our grand opening weekend in October. We can't wait to see what John and his team create in this space.

Would you like to rent Wingfield Station for your business or start-up?

Do you have an SME, a start-up business or a company that is looking to downsize? This is your chance to rent Wingfield Station and boost your business by relocating to a unique setting with amazing marketing potential!

The Station is suitable for businesses with 6-12 members of staff
Located in an enviable rural location but still close to main roads - 5 minute drive off the A38 junction at Alfreton

The Station will soon be let by Alfreton agents, Savidge and Brown, but we are also open to early expressions of interest. Please contact Peter on 07973 329420 if you would like further details.

  • Substantial car parking for 12+ vehicles
  • Enviable rural location with fascinating historical context
  • Good access to the M1
  • Rail link at Alfreton
  • Site CCTV
  • Flexible cellular layout
  • Unit size: 78sqm/839sqft
  • Air source heat pump under floor heating throughout
  • Short or long term lease available - rent £12,000 per annum exclusive

Gardeners' World Live - 'The restoration garden'

Wingfield project lead, Peter Milner, describes the connection to Gardeners' World Live:

"Our Wingfield Station project has involved Derby College horticultural students in designing a planting scheme for the station yard. However, we went one step further by co-producing and designing an award winning and much-lauded show garden for the 2023 BBC Gardeners' World Live at the NEC!

The design involved the students building a very realistic façade of the station building, showing one half in a derelict state and the other, renovated. Around this, a planting scheme was created to reflect the change from derelict to restored. The judges were particularly taken not only by the detail and range of plants selected, but also the quite unique touch of the cultivated planting echoing the colour and form of the wild flowers – something they had not seen before in a show garden.

None of the students had any previous experience of creating or building a show garden. Along the way they were introduced by our DHBT Academy Volunteer - heritage roofer, Richard Jordan - to the skill of cutting, fixing and laying slates for the roof to the station.

Over the four days of the show the garden was seen by more than 50,000 people, many of whom took a real interest in our amazing project.

And the Award – only an outstanding SILVER MERIT! A well-deserved accolade for all involved, including our wonderful volunteers who turned up each day to help with the garden and provide information to the public. The planting scheme will be transferred to Wingfield just as soon as the planters have been built in the station yard. Volunteers to help with this would be made really welcome - please get in touch with Victoria if you can help (wingfieldstationvolunteering@gmail.com)."

'The Restoration Garden' won silver merit at Gardeners' World Live 2023
Thanks to all the sponsors and supporting companies
The garden attracted a lot of attention - including from wildlife!
Richard Jordan, heritage roofer and DHBT Academy member, teaching the students about the slate roof tiles
Transportation to the NEC and early construction images

midland railway Bench Refurbishment

We recently acquired two 3m waiting room benches from The Midland Railway, Butterley. We intend to position these down the centre line of the Booking Hall. Fred's Shed Antiques and Restorations in Tibshelf are currently lovingly restoring them for us.

They've being drying out in Andrew's workshop for the last few weeks. The refurbishment process will then involve French polishing, ageing, waxing and fitting the new base boards for the seats. They need a lot of work but we can't wait to see the finished product!

These waiting room benches were acquired from The Midland Railway, Butterley

dhbt acts as an 'enabler' to save grade II listed building in bonsall

Since 2019 DHBT representatives have been working hard to secure a future for The Range, an empty and deteriorating 17th century Grade II listed building in Bonsall.

DHBT Trustees Liz and Barry have supported the private owner with tasks including the cutting down of a destructive tree, the freeing of the vulnerable 17th century limestone walling from ivy and the identification of a suitable roofer and conservation builder.

The building has now been granted planning permission and Listed Building Consent for change of use, conversion and alteration to residential dwelling house with new garage/store in the grounds. DHBT advisor, James Boon, has worked on the designs with regular input and support from the trustees.

A great achievement to play a part in saving this building at risk! Here's the owner's account of his experience:

"I would just like to express a few words of appreciation to Elisabeth Stoppard of the DHBT. A few years ago I purchased 1 High Street Bonsall a 400 year old derelict barn on the High Street in Bonsall which had just had planning consent expire weeks before I purchased it. The property has a grade 2 listing and I faced untold challenges , red tape and mountains of procedural conformities that needed addressing before planning was granted and before the smallest of jobs could actually be done to the building. By chance I was advised to contact the DHBT for some guidance and support and was specifically told to ask for Elizabeth Stoppard who, it was explained , would be the best person to assist with her knowing the area so well and being involved in other similar projects . I cannot thank Liz enough as she has been there with me through every step of the journey. Her passion for heritage and her determination to save the beautiful buildings we have in Derbyshire has been a total inspiration and a massive driving force in getting the planning consent approved so we can now progress. She has guided me through every step of the way with regard to engaging the right architects and the right builders and has taken so much of her own time up, helping fit all the pieces of the jigsaw together . Her passion for heritage and her passion for the work of the DHBT has been the difference between saving the building or not, and for that I am extremely grateful. I recommend anyone with a passion for saving Derbyshires beautiful heritage to support the DHBT in their role within the community as without them we would lose so many lovely buildings which make Derbyshire the beautiful county it is." - Mark Whitfield

Sudbury gasworks: rescued and restored

We really enjoyed having our Board meeting at The Gasworks, Sudbury in June. It's a fantastic Grade II venue in lovely surroundings; the first chance for some of the team to be able to see the completed National Lottery Heritage Fund restoration project.

We'll definitely be back! Find out here how you can book the space for your event.

DHBT June board meeting at The Gasworks, Sudbury

The Gasworks was the venue for our monthly visit on the 18th June and it also hosted the East Midlands Industrial Archaeology Conference the day before this. Dr Ian West, Cherry Ann Knott and Lucy Godfrey all spoke about topics relating to the restoration of the building and/or gas production.

DHBT visit to The Gasworks which was also the venue for the EMIAC 2023

DHBT Architecture Awards 2023

A reminder that we are currently accepting applications for the 2023 DHBT Architecture Awards - the deadline is the 31st August. There are a number of categories for 2023, so many historic building projects will find they can apply. We’ve also got our ‘Conservation Champion’ and ‘Craftsperson’ categories too.

Here's a note from Oliver Gerrish, DHBT Trustee and Architecture Awards coordinator:

"This year will be the 4th DHBT Architecture Awards. We feel these awards are a way of publicly thanking those people who go out of their way to build, re-build or restore historic buildings, or create new buildings with integrity to stand by the old. Since their inception, the awards have celebrated dozens of schemes - from the vernacular to the grand, from the industrial to the sacred and more. Our criteria is open to all projects completed in the last five years that have an historic (pre WW11) association, and we hugely appreciate you applying. Our team of judges relish the chance to see projects all over the county, and bring them to a wider audience, as we celebrate our heritage together. Please spread the word and apply - we look forward to celebrating your hard work."

SUNDAY 20TH AUGUST, 2pm - TOUR OF THE HISTORIC TOWN OF MELBOURNE, DERBYSHIRE

Hurry! Only two tickets left (at the time of writing). Please add yourself to the waiting list if it has sold out!

Framework knitters' cottages of 1795, built on Blanch Croft by the Melbourne Friendly Society or 'Sick Club' and Melbourne Castle engraved in 1733 for the Society of Antiquaries from an original drawing of 1561.

A walk around Melbourne with local historian and independent heritage consultant, Philip Heath, who will explain how mediaeval Melbourne possessed a handful of remarkable buildings before becoming a sleepy agricultural village; awakening once more in a new guise, as a bustling industrial town in the early 19th Century.

Plentiful evidence of all its development phases remains, though some of it requires interpretation.

Please meet at 1:50pm at the Castle Square car park. Philip and his wife, Penny, will generously provide refreshments in their delightful garden at the end of the visit.

Sunday 17th September, 2pm - Visit to Lode Mill, Alstonefield

Lode Mill

Visit to Lode Mill, on the River Dove - Sunday 17th September, 2pm

This watermill sits by the River Dove at DE6 2GA on the road between Alsop-en-le Dale and Alstonefield. It was purchased around 15 years ago to become a holiday let, but had various planning issues, not least because of its location with flooding and difficult bedrock – ‘All-stone’field’! This is now converted, but with the ground floor still retaining its workings -a Hurst frame set up with three millstone sets, and a waterwheel - still to be restored. The various conversion issues and methods to overcome them will be of particular interest to members.

The mill has history dating back at least to 1804, and originally ground lead-bearing ore, but is set up for wheat and oats with two Derbyshire gritstone wheel sets and one French burr set. It later became a coffin-maker’s workshop, then a cattle shed. It was allegedly abandoned around 70 years ago, and was in a sorry state when purchased, with the millpond already breached upstream and drained, though the sluice still exists. Having been designed to grind ore, it has a fireplace and chimney - a definite no-no when grinding flour due to explosion risk.

Parking will be off-site - details to follow nearer the time.

autumn visits - hold the dates

July visit to John Smedley (Lea Mills)

Bookings will soon be open for our Autumn events:

15th October, 2pm - Longford Hall

12th November, 2pm - Meynall Langley

Date TBC, December - Online talk about English architect, G.H.Widdows

link in with dhbt

Find DHBT on LinkedIn.

We're on LinkedIn - we'd love you to join our network -

You can also follow us on social media @dhbtrust and subscribe to our YouTube channel