Loading

Holly Anne September 2023

Progress Update

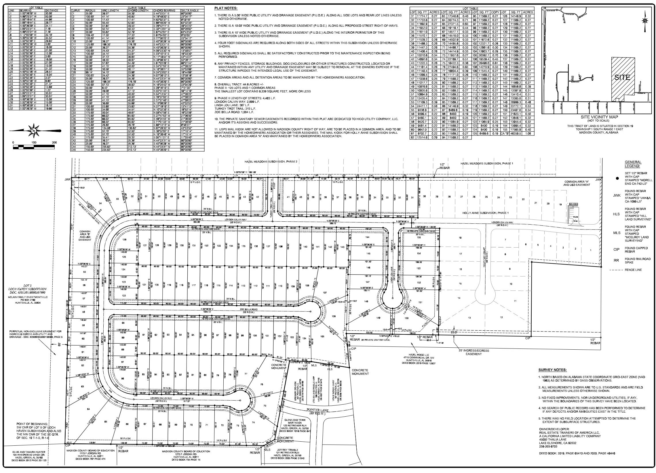
We have secured the first 30 permits for building with two lots already poured. Four more are expected at the beginning of Oct with the rest quickly to follow. Framing has begun. The first culdesac needed to be widened and is just awaiting proof rolling before asphalt is added and finished. Estimated completion is mid-Oct. Turn lane stripping in process of removal, then restriping will complete the turn lane. CAD drawings for the Clubhouse were turned over to site personnel to shoot prep and subsequent work to begin in October.

Construction Update Videos

Progress Images

September Aerial Progress
September Ground Progress

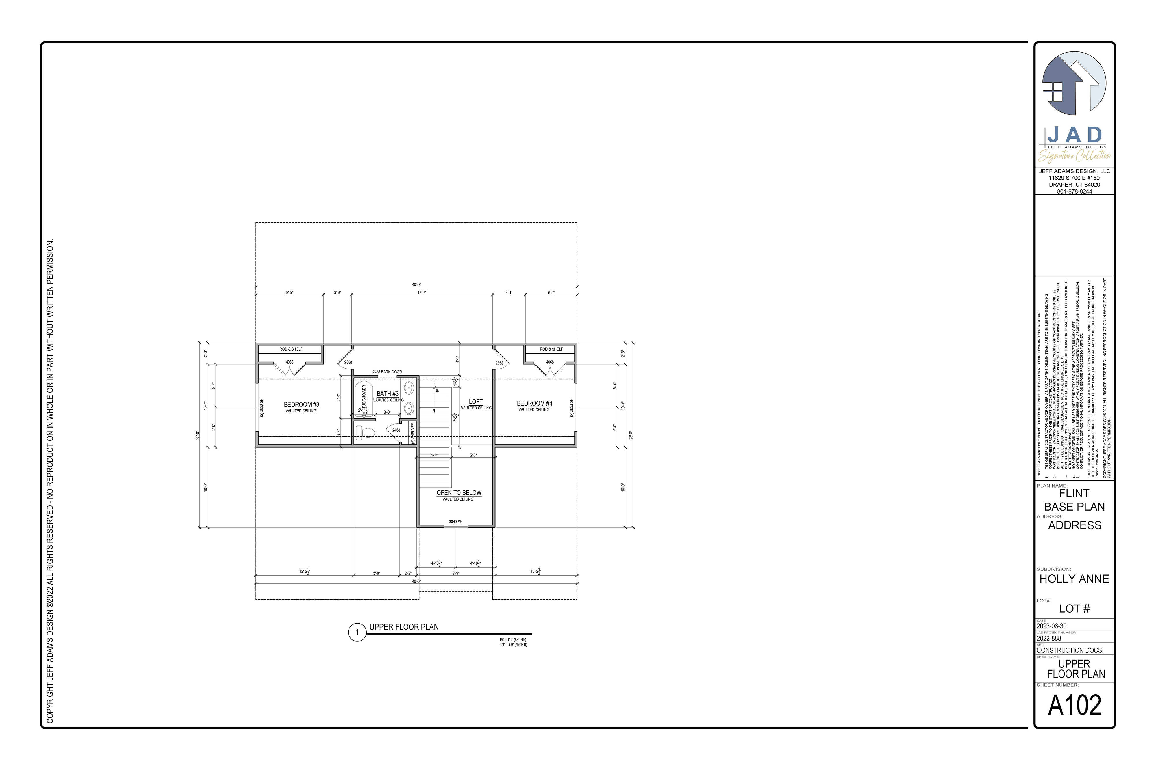
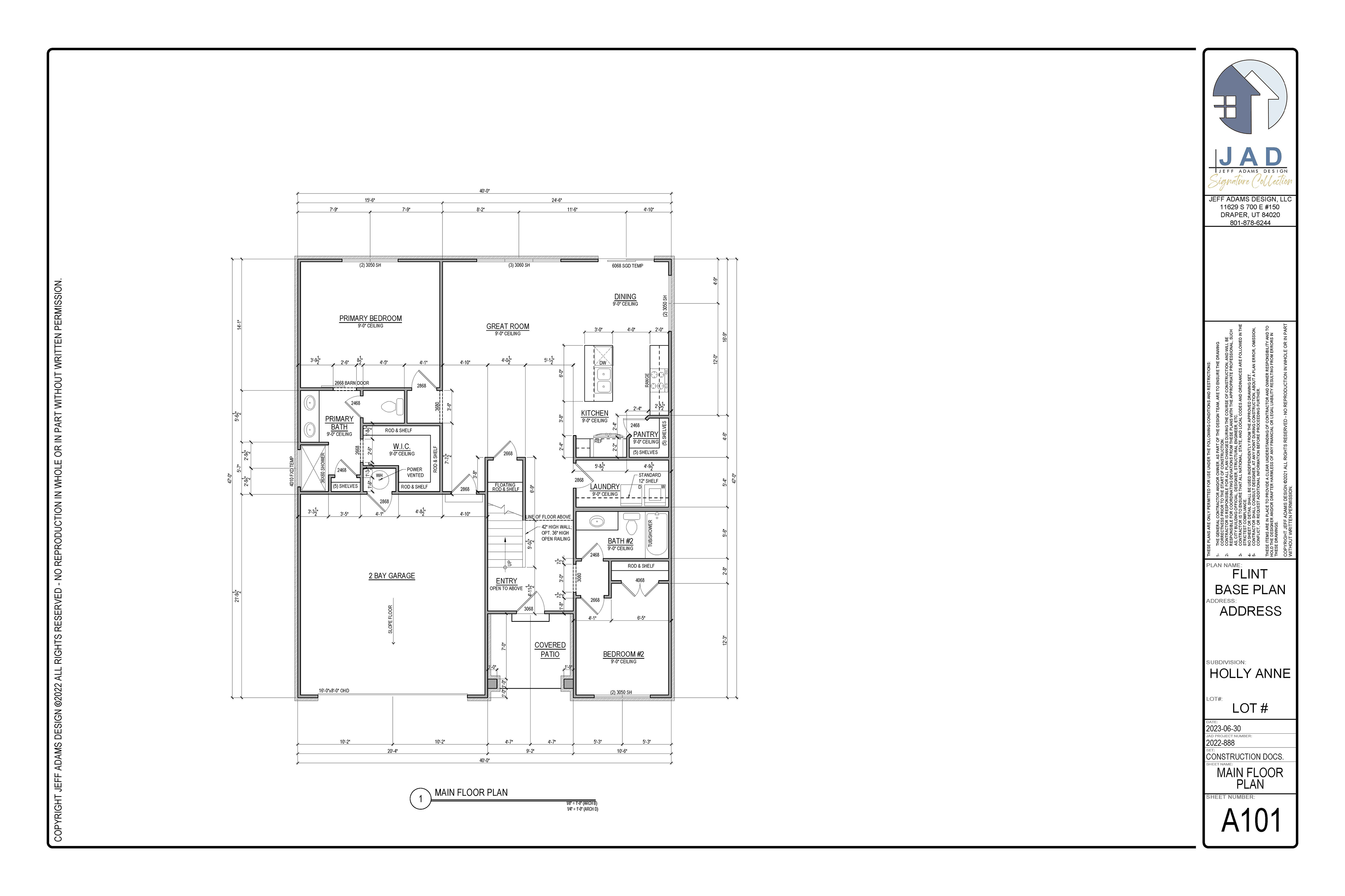
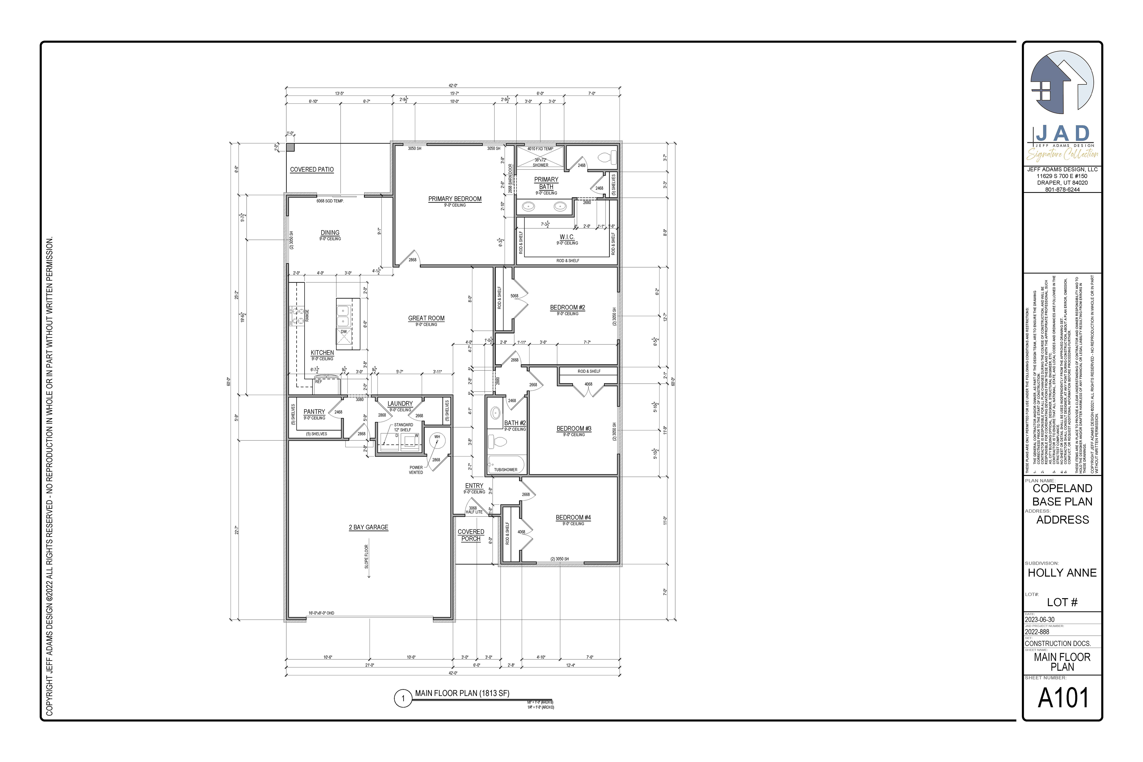
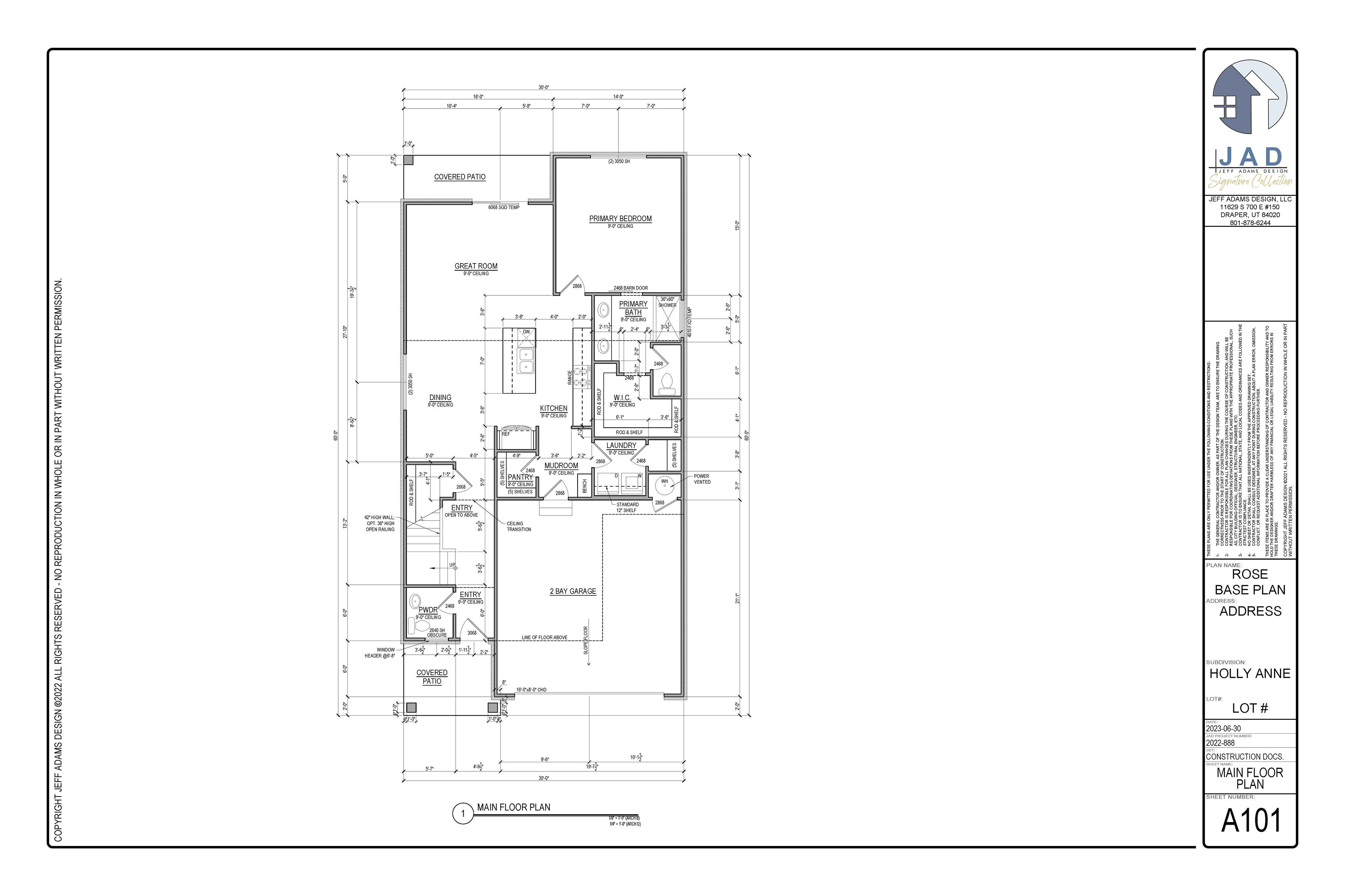
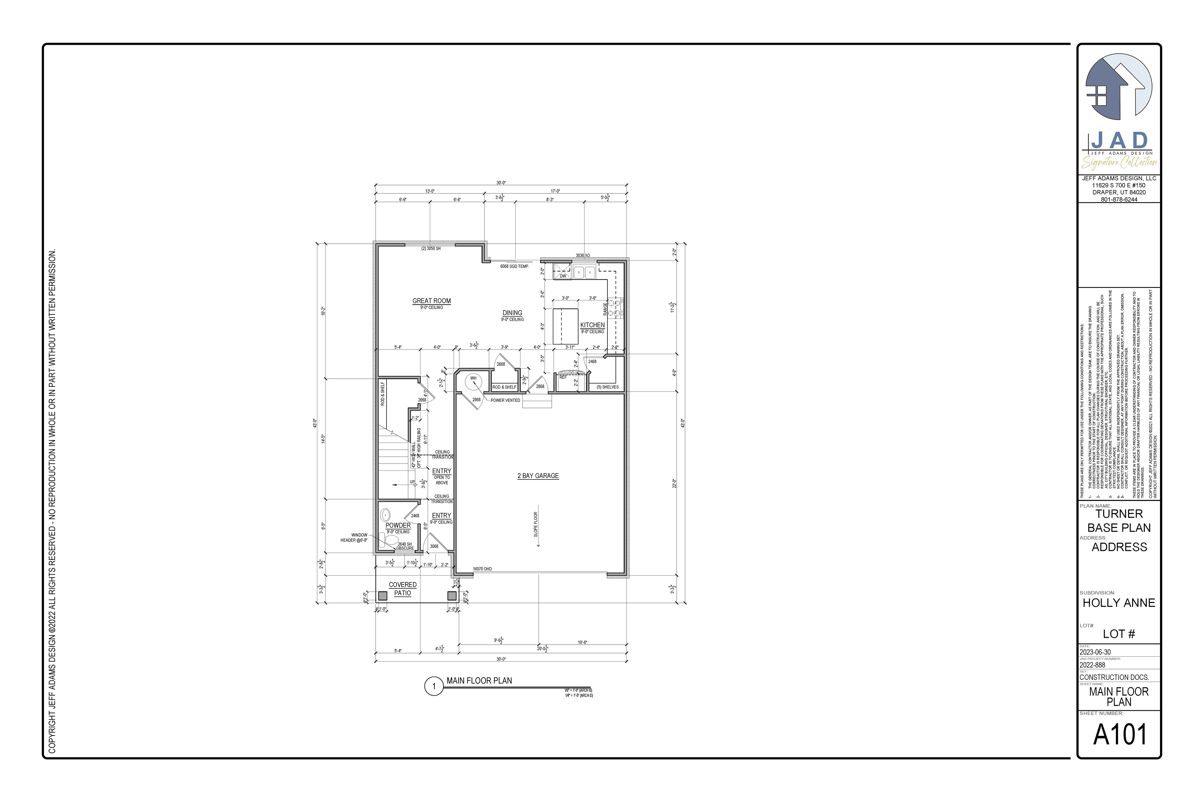
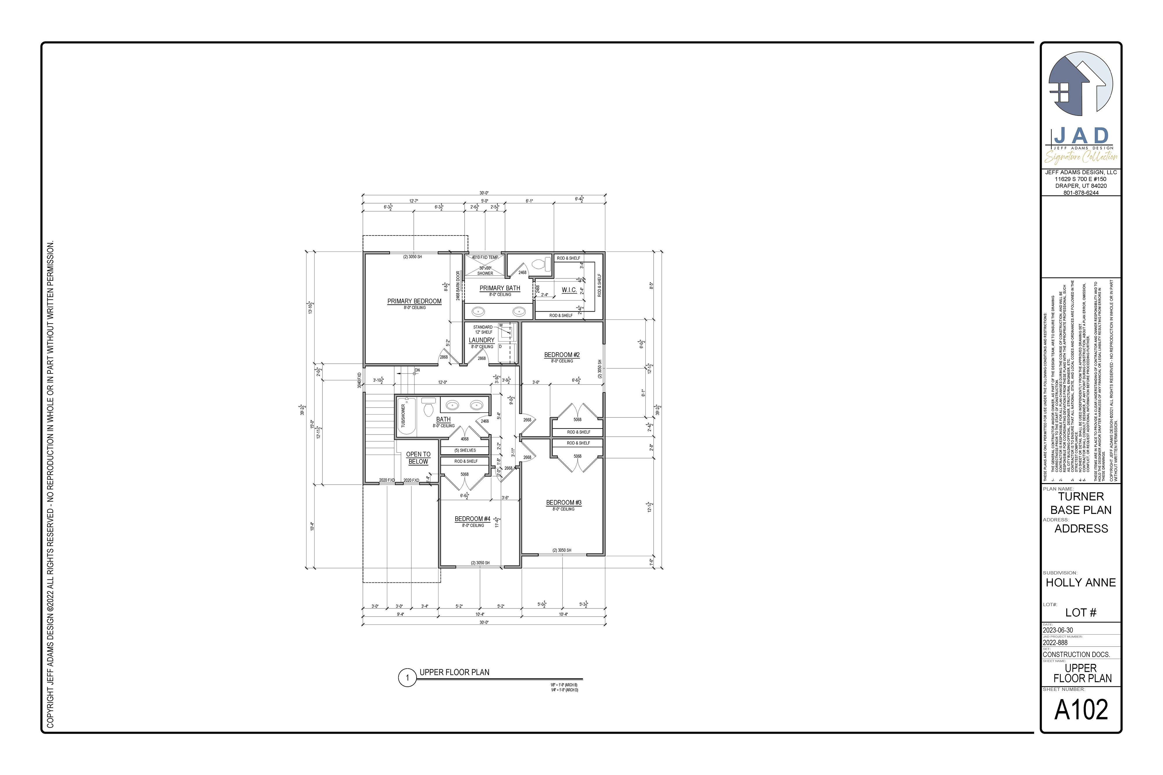
Design

Designs Subject to Change (Click to View Larger Image)

Past Updates

Want to compare this month's progress with those in the past? Previous Project Updates are here for your convenience:

August 2022 - September 2022 - October 2022 - November 2022 - December 2022 - January 2023 - February 2023 - March 2023 - April 2023 - May 2023 - June 2023 - July 2023 - August 2023

For more information contact: Rob Fuller at (707) 365-6891