Loading

Holly Anne August 2023

Progress Update

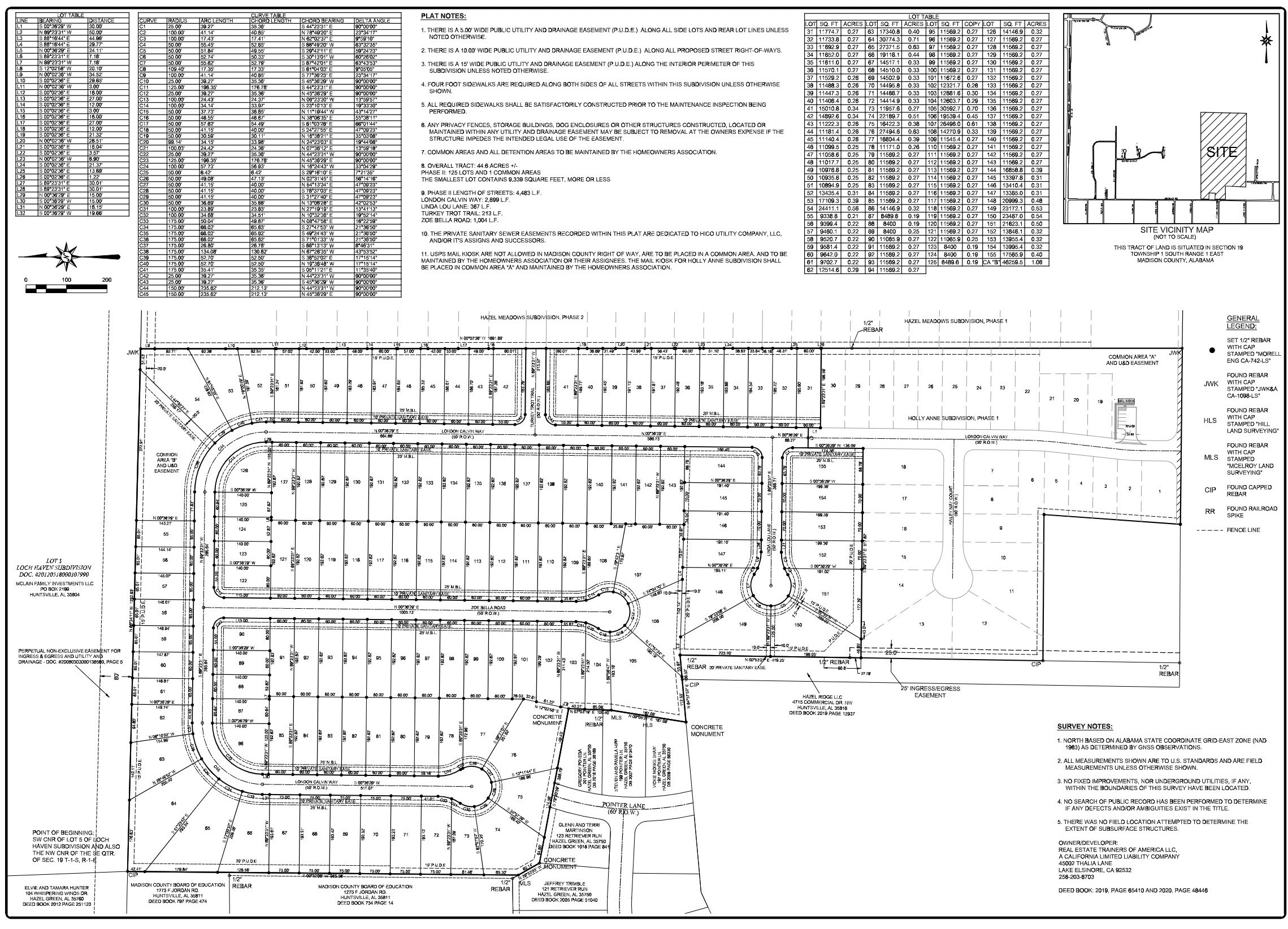
This month, our team completed all of the punch list items given by the county, with the exception of two. However, the county offered a performance bond for these two items, which will allow us to continue to accelerate primary development efforts and return to the two items at a later date.

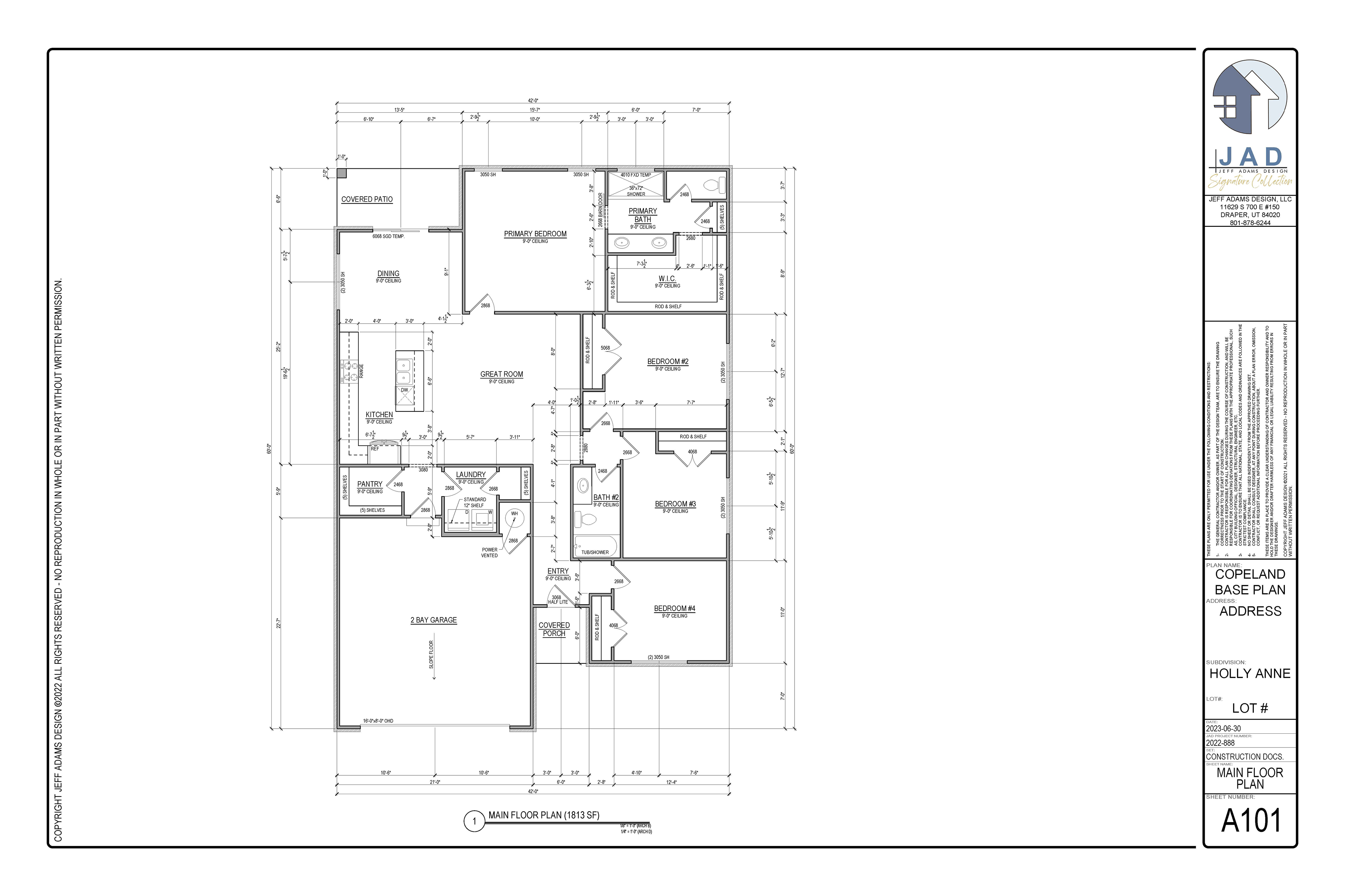
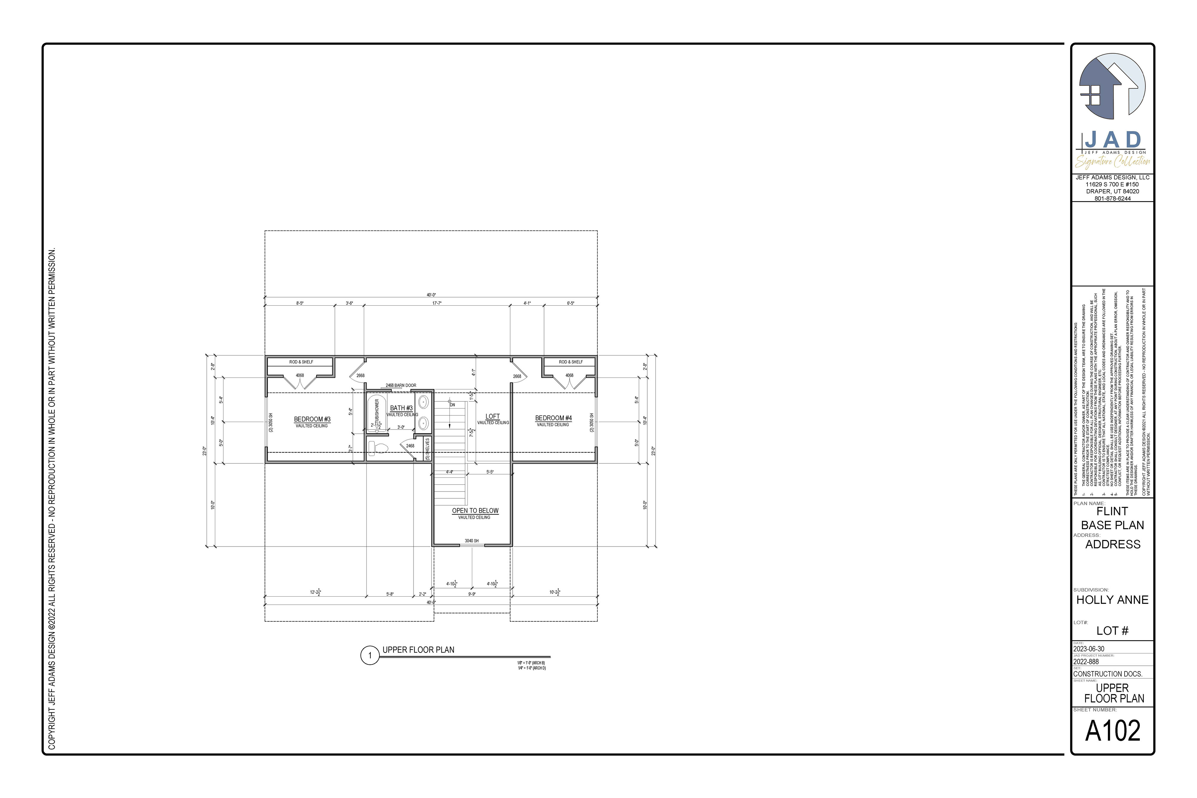
We also had our floorplans for Holly Anne engineered, working hard to ensure that they’re built to be safe. We selected a general contractor to build the homes, and we’re close to executing a contract with them.

Now that horizontal development is nearly complete, we are trying to start building homes in Phase 1. To do so, we need to have the county record our plats and then issue building permits. We just submitted the final plat for approval last week and expect to be approved and recorded by the end of the week.

Another key effort at Holly Anne has been designing the clubhouse, in coordination with an architect and multiple engineers. We expect the design to be completed during the month of September. This is important because fiber communication lines will be run centrally to the clubhouse and then dispersed throughout the neighborhood from there, so it will be essential to have the clubhouse far enough along before any of the homes are finished. That way, occupants will have access immediately upon moving in. The multifunctional clubhouse will also feature a pool, patio, gym, leasing office, and gathering area, as well as work cubicles.

Construction Update Videos

Progress Images

Design

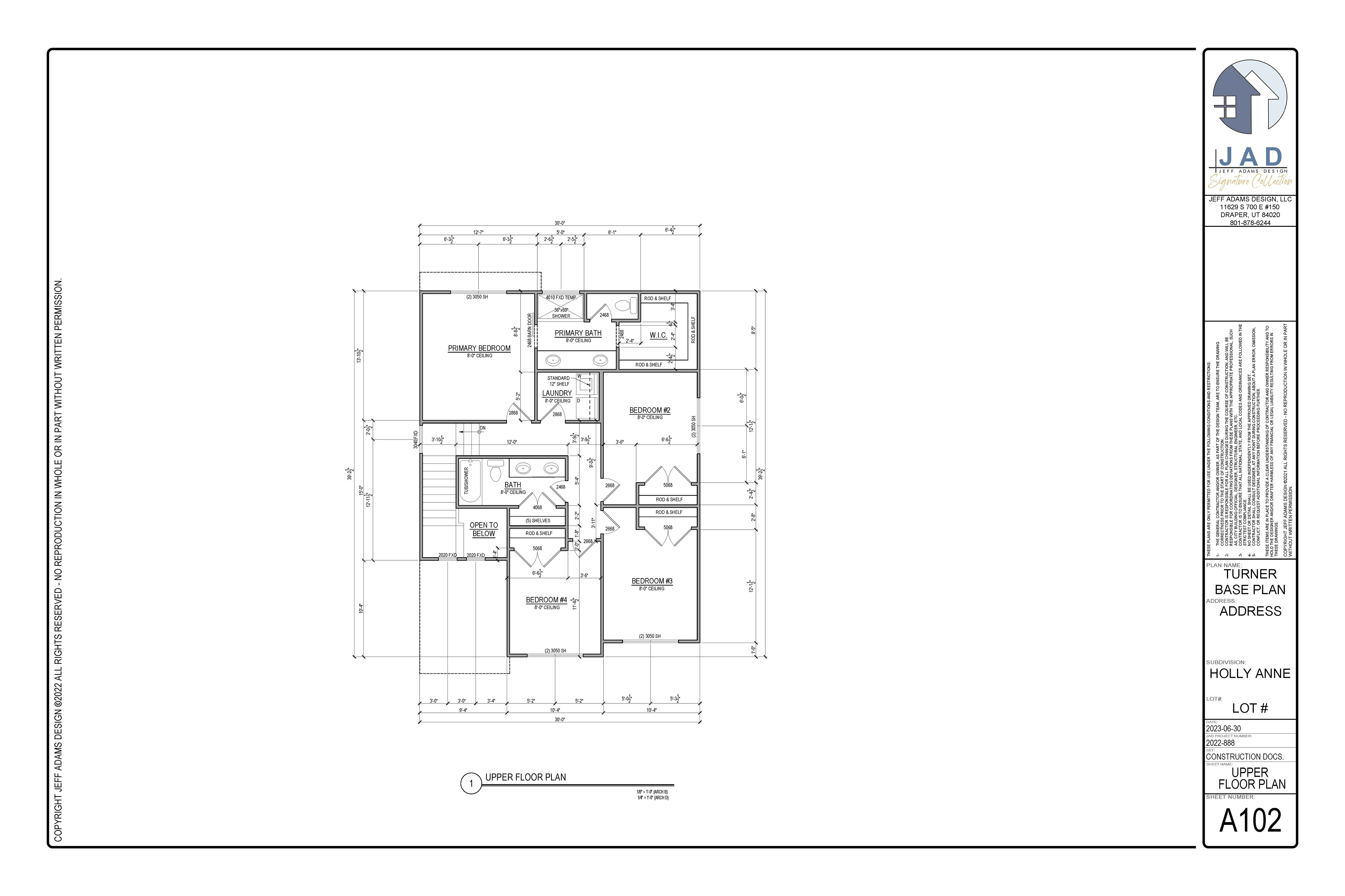
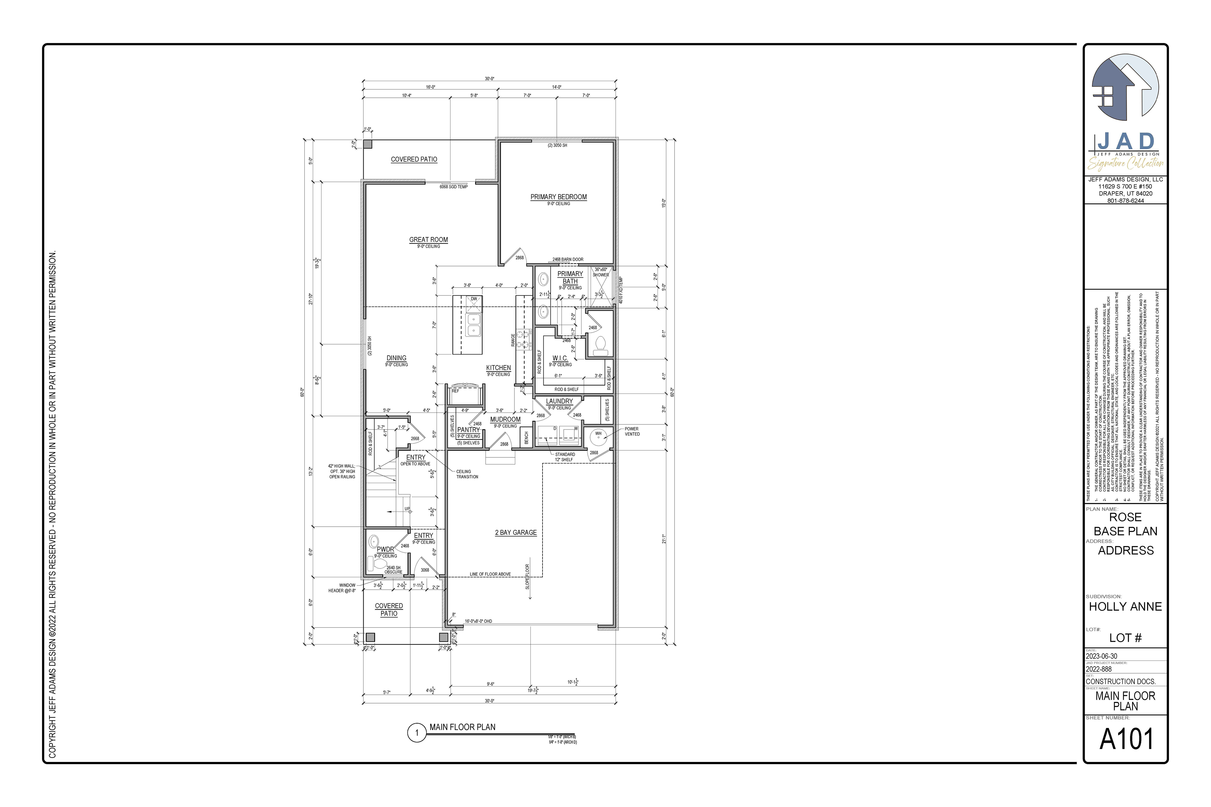
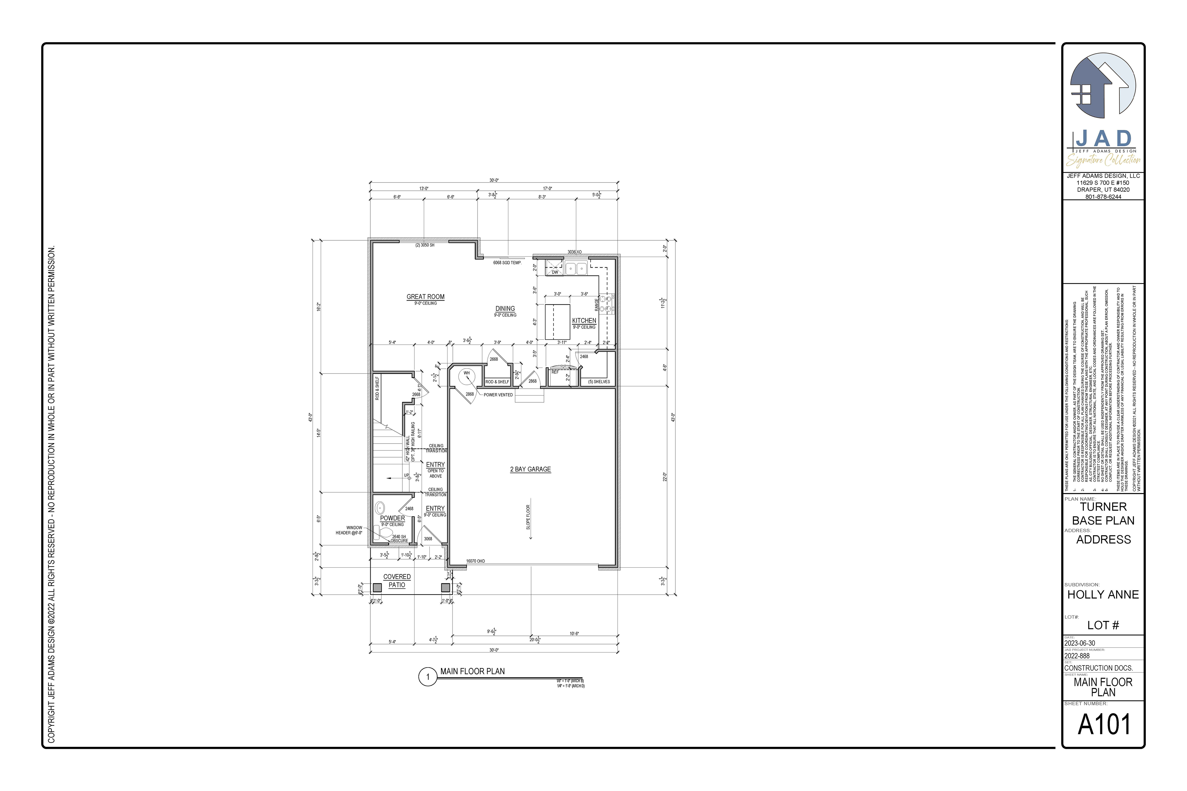
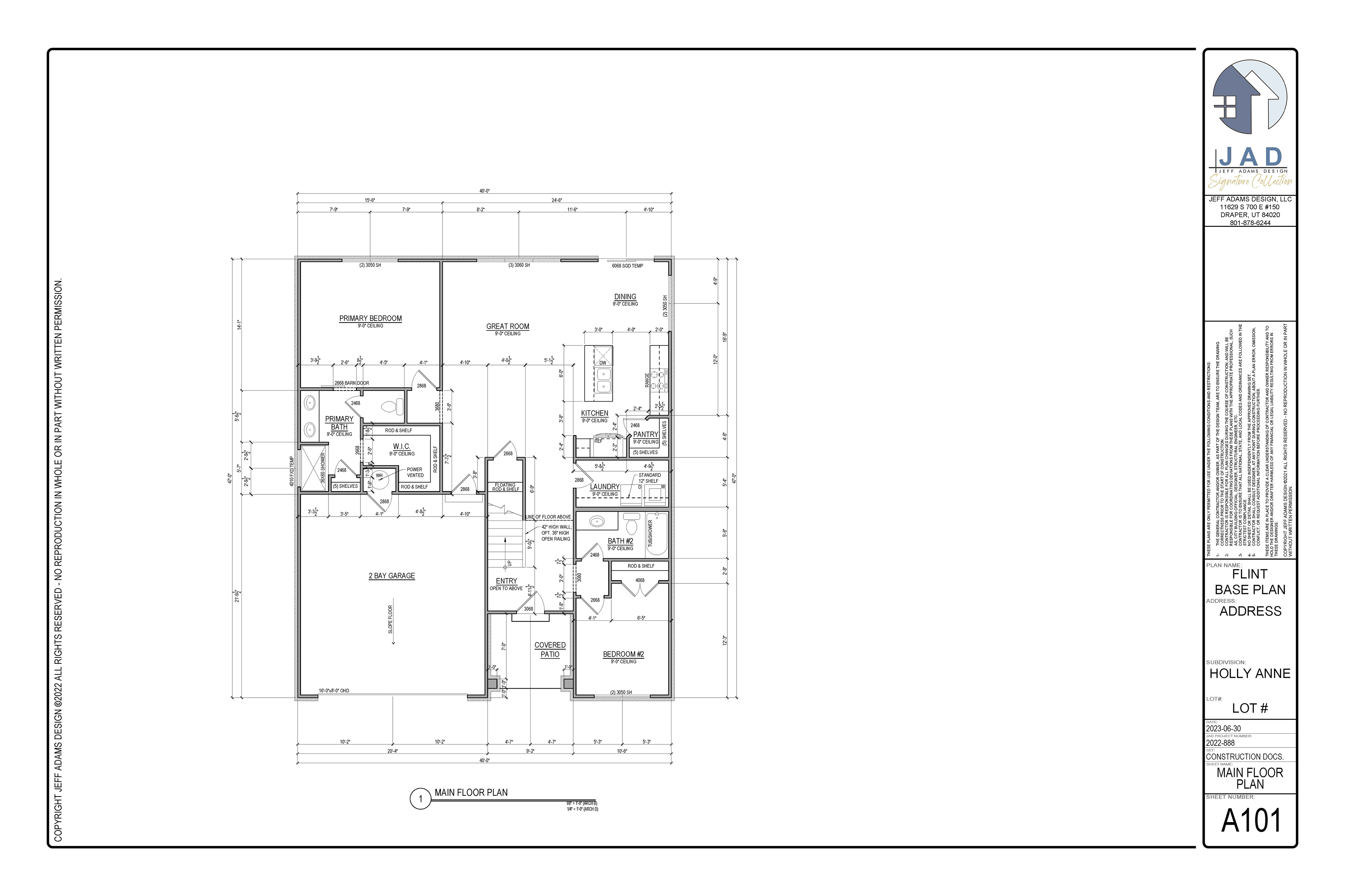
Designs Subject to Change (Click to View Larger Image)

Past Updates

Want to compare this month's progress with those in the past? Previous Project Updates are here for your convenience:

August 2022 - September 2022 - October 2022 - November 2022 - December 2022 - January 2023 - February 2023 - March 2023 - April 2023 - May 2023 - June 2023 - July 2023

For more information contact: Rob Fuller at (707) 365-6891