Loading

Hayward High School Construction Updates

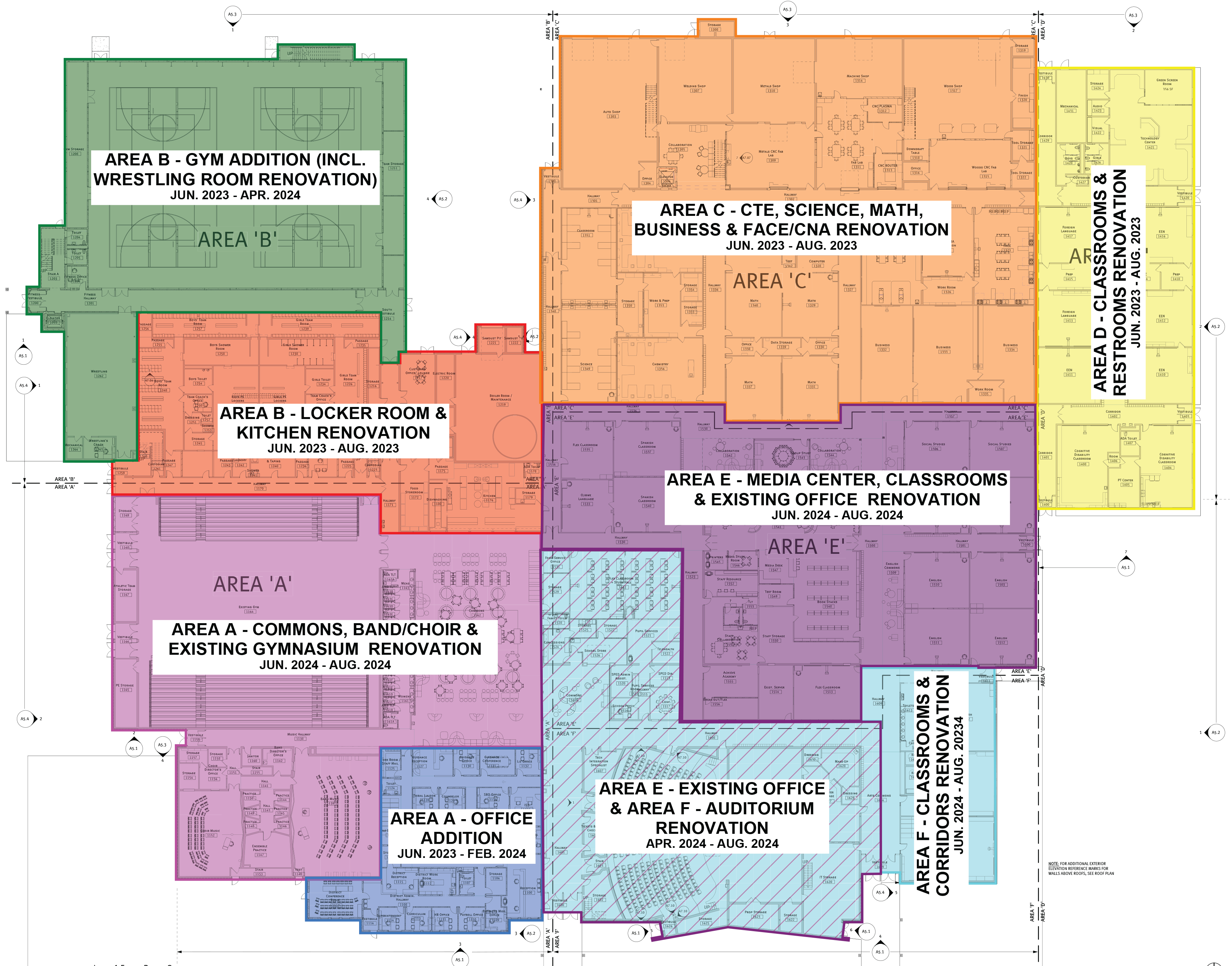
The Hayward High School additions and remodeling project includes two separate additions; a gymnasium addition (with an elevated track and associated aerobic/strength training) and a secure entry office addition. Additionally, general renovations throughout the existing school, including casework, flooring, and access control/security upgrades.

Site Plan
Phasing Plan

Construction Activities this Month

Hayward High School - Current Drone Video

Area A - Office Addition

Completed

  • Site clearing and demolition
  • Excavate and pour foundation footings to support new addition
  • Construction of new foundation walls
  • Began erection of structural steel
  • Delivery and placement of precast wall panels.
  • Installation and placement of joist and deck.

Upcoming

  • Mechanical and Electrical Rough-ins to include underground plumbing
  • Structural stud framing
  • Roofing
  • Exterior enclosure of addition

Area B - Gymnasium Addition

Completed

  • Site clearing and demolition
  • Back fill and reach grade for slab to be poured
  • Excavate and pour foundation footings to support new addition
  • Delivery and erection of structural steel.
  • Delivery and placement of precast wall panels.
  • Installation and placement of joist and deck.
  • Installation of running track steel

Upcoming

  • Lay block walls for new elevator shaft
  • Final grade of gym floor
  • Pour slab on grade for new gym floor
  • Mechanical and Electrical Rough Ins

Area B - Locker Rooms & Kitchen Renovation

Completed

  • Mechanical and Electrical Rough Ins to include underground plumbing modifications in locker rooms.
  • Began interior selective demolition of existing upper-level gymnasium
  • Tile installation in locker rooms.
  • Paint locker rooms.
  • Finish installation of new epoxy floor finish.
  • Installation of new lockers in locker rooms.
  • Construction cleaning
  • Installation of new lockers in locker rooms.
  • Construction cleaning
  • Owner Move In!
Locker Rooms

Upcoming

  • Completion of Punch List Items

Area C - CTE Renovation

Completed

  • Selective demo including walls, ceiling, flooring and miscellaneous casework.
  • Initial shoring
  • Mechanical and Electrical Rough Ins and undergrounds
  • Delivery and erection of structural steel and new CMU walls
  • Elevator shaft excavation and placement
  • Interior foundations
  • Shoring removed for new load bearing walls
  • Continue corridor floor grinding for future bomanite finish
  • Installation and completion of ceiling grid
  • Final installation of MEP finishes
  • Final paint and construction cleaning
  • Owner Move In!
CTE Corridor
Shop Rooms

Upcoming

  • Completion of Punch List Items
Shop Rooms

Area C - Classrooms & Corridors (Science, Math, Business & FACE/CNA) Renovation

Completed

  • Selective demo including walls, ceiling, flooring and miscellaneous casework.
  • Corridor floor grinding for future bomanite finish
  • Mechanical and Electrical Rough Ins and undergrounds
  • Construction of framing and drywall for new walls
  • Installation of interior finishes to include new ACT (acoustical ceiling tile) – currently in progress.
  • Laying of new carpet in classrooms.
  • Complete bathroom finishes to include tile and mechanical fixture upgrades.
  • Final paint and construction cleaning
  • Owner Move-In!

Upcoming

  • Completion of Punch List Items

Area D - Classrooms & Restrooms Renovation

Completed

  • Painting
  • Installation of interior finishes to include new ACT (acoustical ceiling tile)
  • Polishing Concrete at finished floors
  • Framing and drywall new walls
  • Laying of new carpet in classrooms.
  • Complete bathroom finishes to include tile and mechanical fixture upgrades.
  • Construction cleaning
  • Owner Move-In!

Upcoming

  • Completion of Punch List Items

Building Envelope and Canopy Renovations

Completed

  • Removal of brick facade for the installation of new brick facade and metal panel exterior finish.

Upcoming

  • Installation of weather barrier and metal panel on exterior of building.

Weather

Construction Days lost to Weather This Month: 0

Total Construction Days lost to Weather: 0

Safety

Lost Time Days: 0

Days Worked Without Lost Time Accident: 122

Schedule

Construction starting in May 2023 with final completion in August 2024.

Renderings

Project team

Kraus-Anderson

Dustin Phillips, Senior Project Manager | dustin.phillips@krausanderson.com

Mike Phillips, Project Manager | mike.phillips@krausanderson.com

Cole Tobin, Project Superintendent | cole.tobin@krausanderson.com

Laurie Fronk, Senior Project Coordinator | laurie.fronk@krausanderson.com

DSGW Architects