Loading

Tara Creek October 2023

Progress Update

The building plans are approved and have been obtained. Underground lines is 90% complete and transformers are forthcoming. We are still waiting for concrete and plumbing to be released as soon as the financing is in place.

Progress Photos

October Aerial
October Ground Images
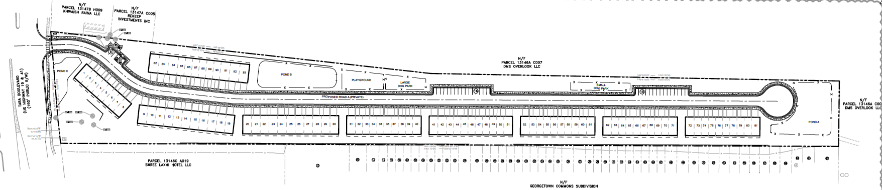
Plat

Past Updates

Want to look back? Previous project updates will are here for your convenience.

April 2022 - May 2022 - June 2022 - July 2022 - August 2022 - September 2022 - October 2022 - November 2022 - December 2022 - January 2023 - February 2023 - March 2023 - May 2023 - June 2023 - July 2023 - August 2023 - September 2023

For more information contact: Rob Fuller at (707) 365-6891