Loading

Holly Anne October 2023

Progress Update

With great weather, things are moving quickly at Holly Anne. We completed the approval for 30 houses in phase 1. 16 are in vertical development, four of which have passed their four-way inspection, and have brick exteriors and completed shingle roofs. The remaining 14 slabs are expected to be poured and vertical construction begun soon. Despite concern about delays and availability, our management team was able to secure all the necessary transformers for phase 1 and they have been installed. Color selection for exterior materials as well as interior choices have all been selected as well as our new property management company. We anticipate potential tenants to start filling Q1 2024.

The first cul-de-sac has been completed and signed off. The county is still reviewing the turn lane, but is close to being signed off. County approval for the clubhouse plans is expected in November. All the necessary site work ahead of constructing the clubhouse has been completed.

For phase 2, our water and utility lines are being installed back to the detention pond at the rear of the property. The testing of the water lines has been ordered. Pond has also been ordered. All facets of the detention pond have been completed except for the Hydro seeding, which is in process. Conduit for the utility company to bring power back to the pump station has been completed.

A significant amount of site work has also been completed into what has now been determined will be phase 3 and four. Sewer pipe has been installed in all of phase 3 with a substantial amount of grading also completed.

Construction Update Videos

Progress Images

October Aerial Images
October Ground Images

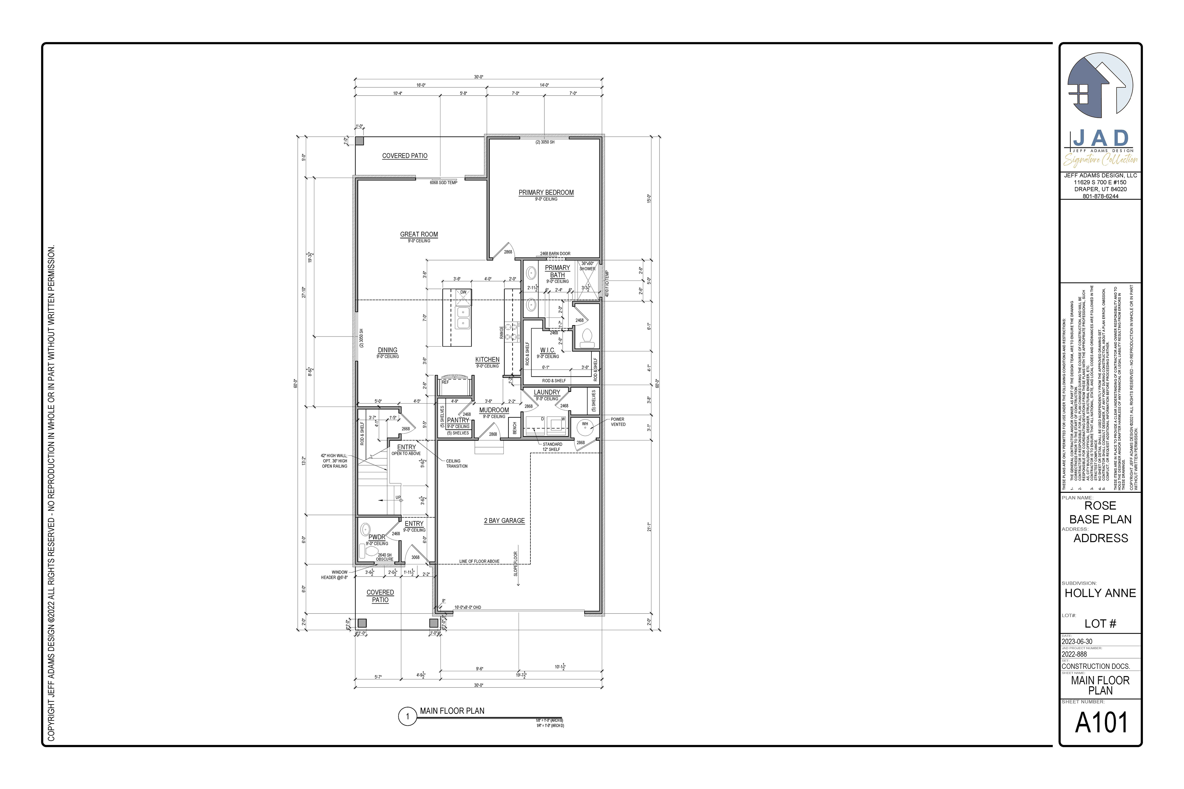
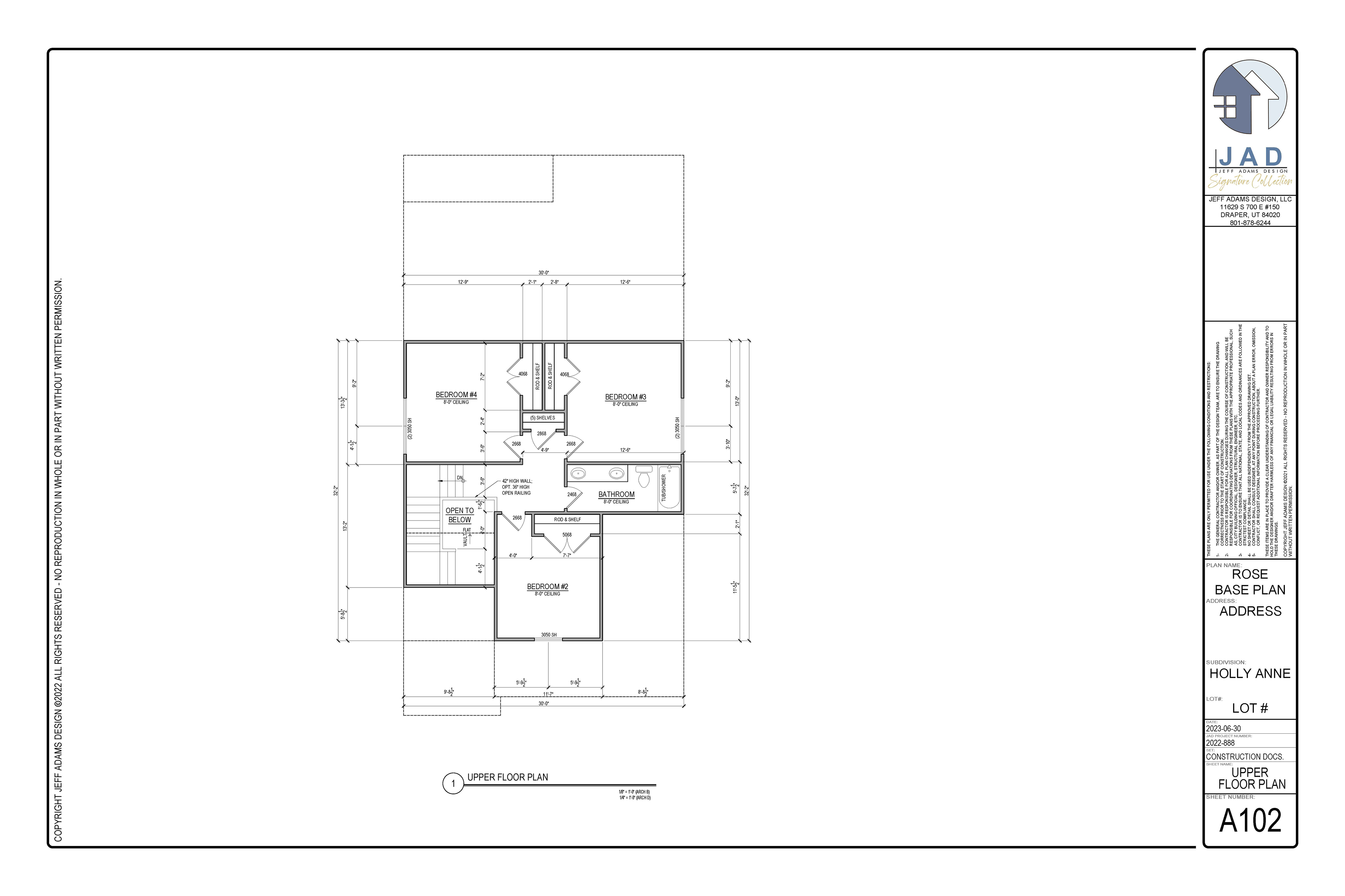
Design

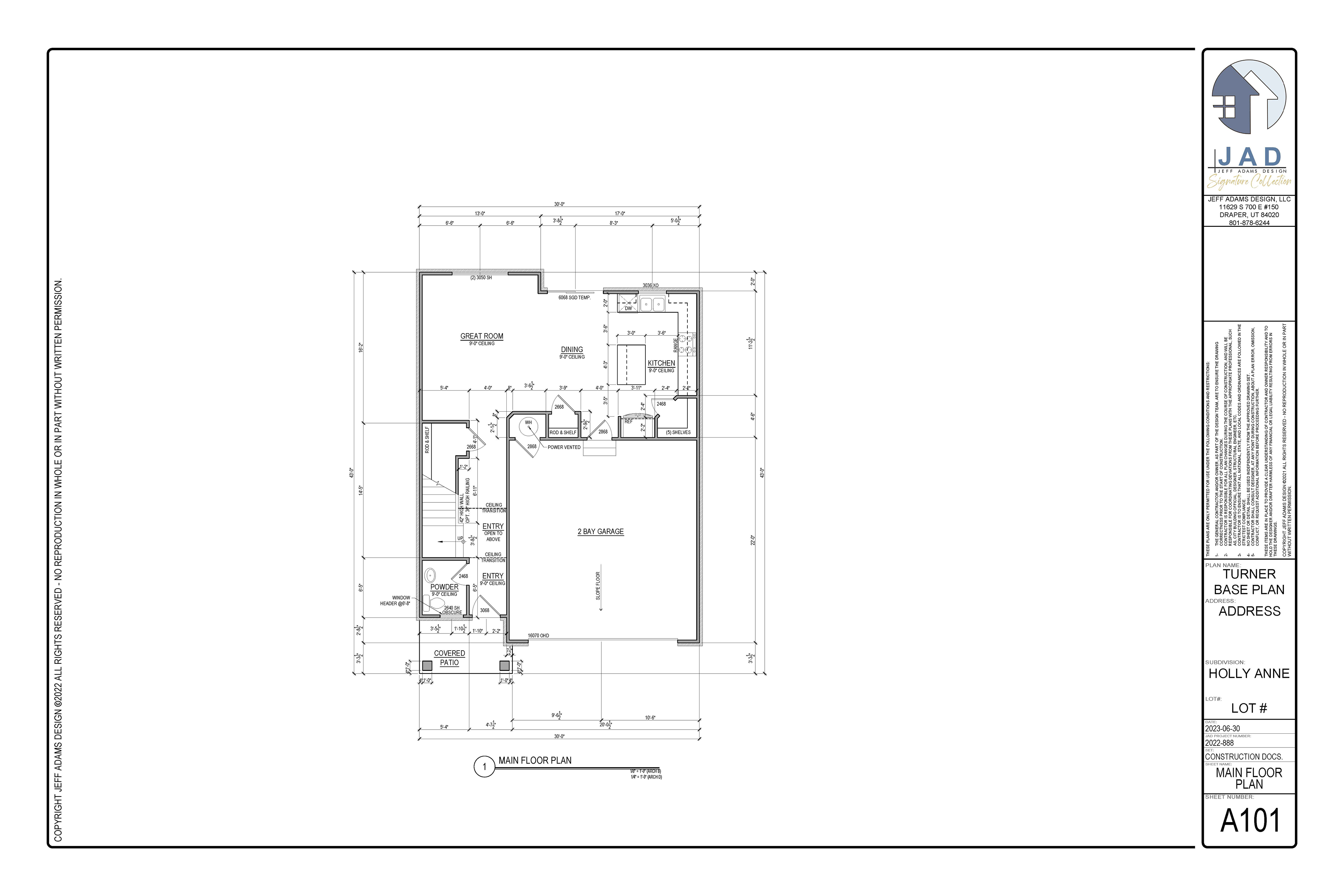
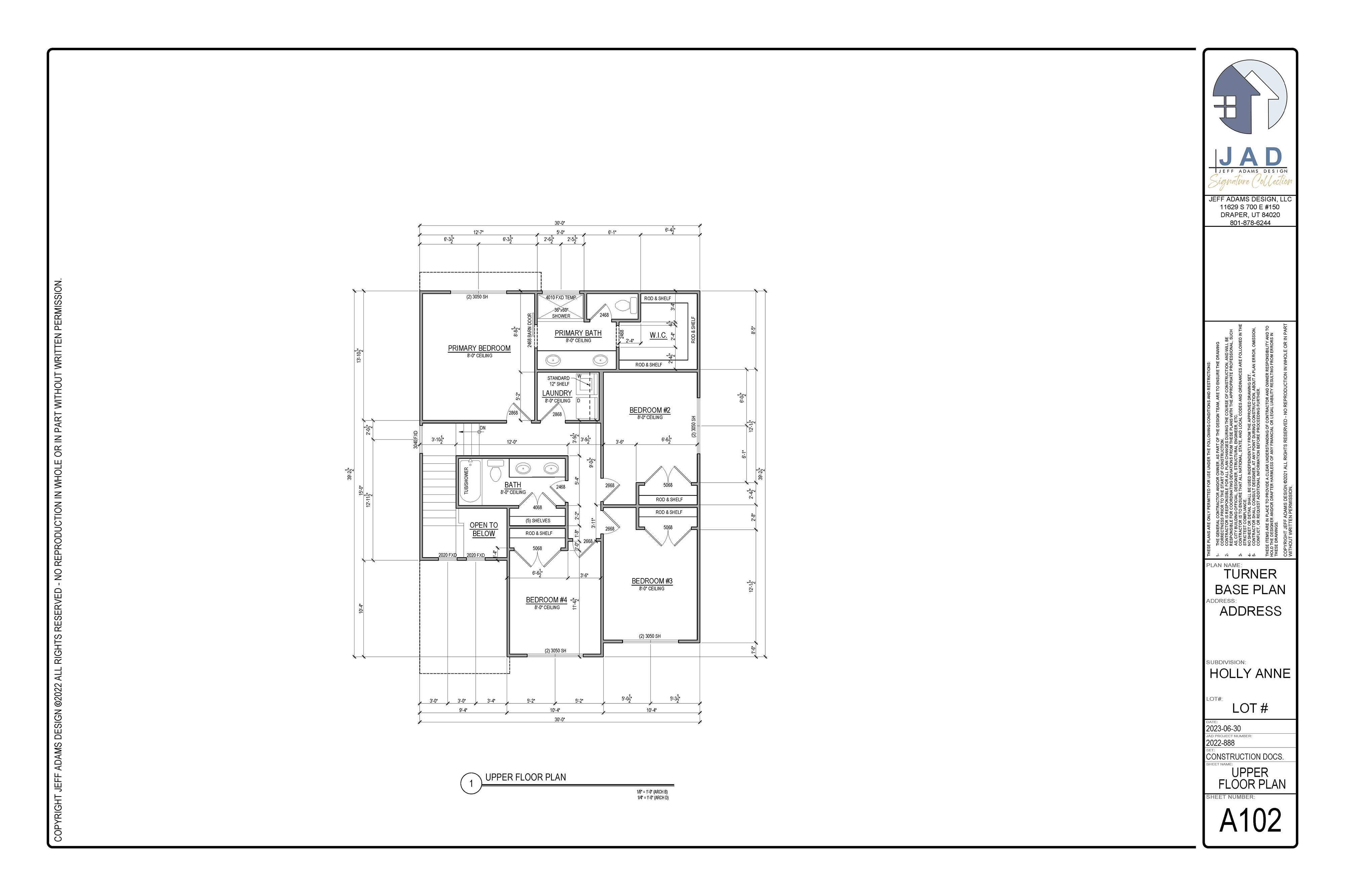
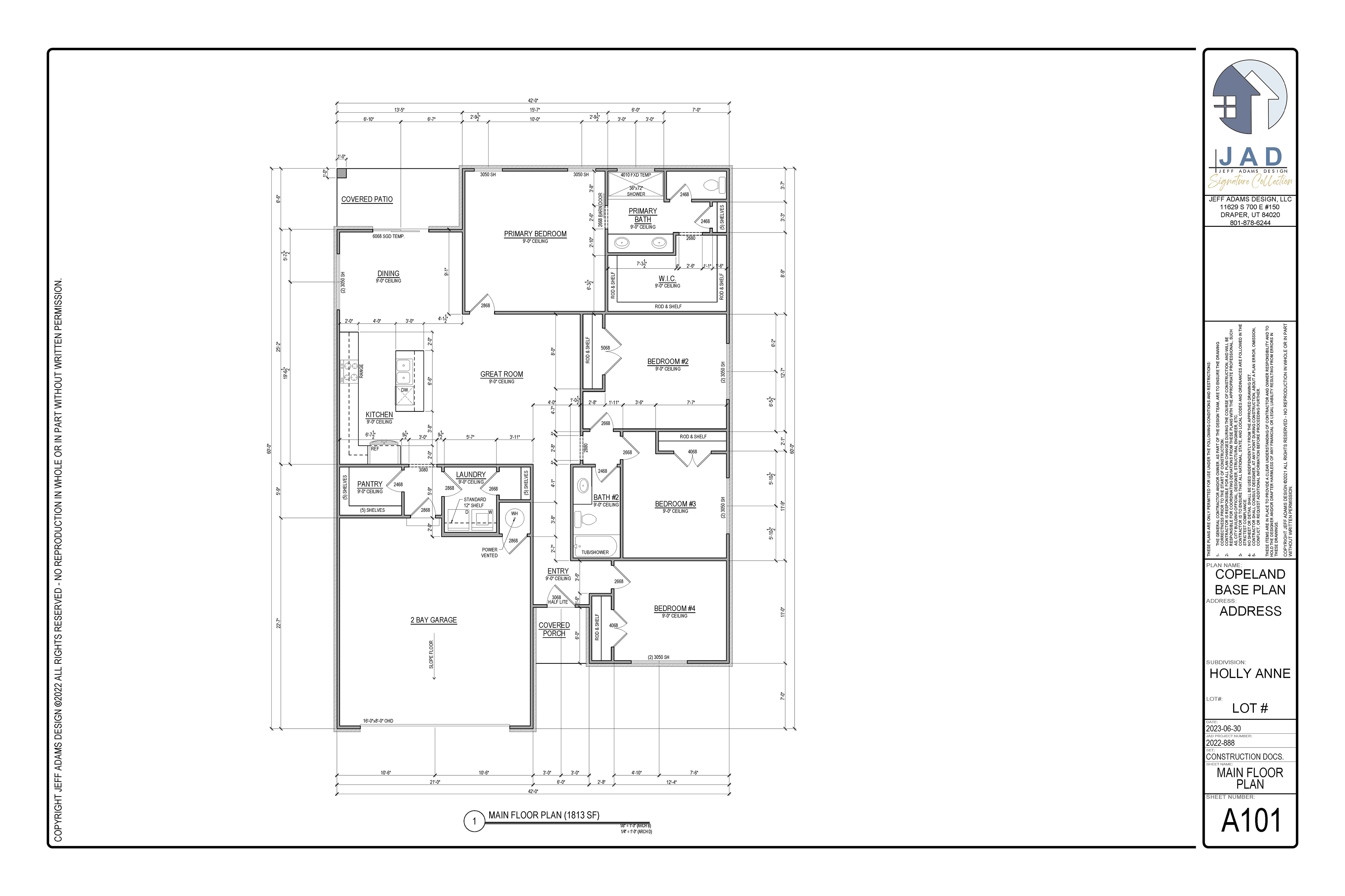
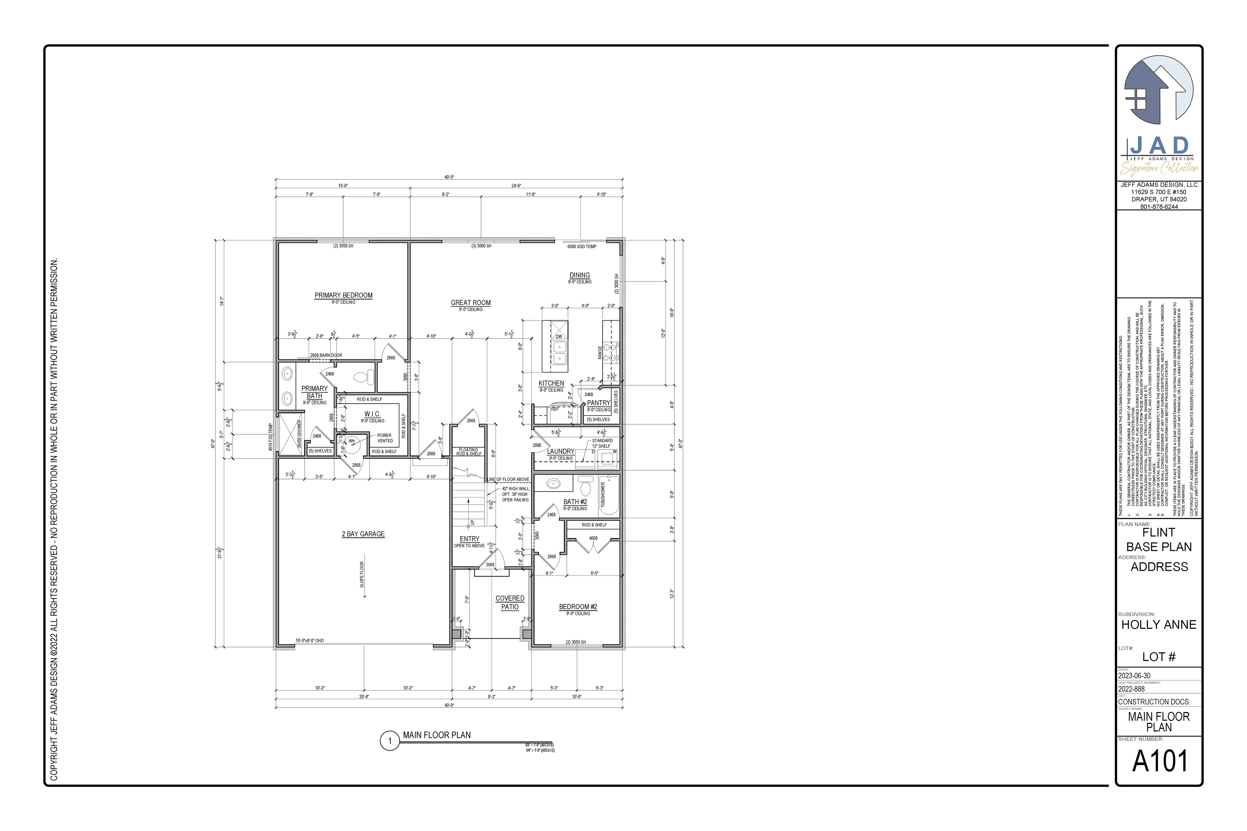
Designs Subject to Change (Click to View Larger Image)

Past Updates

Want to compare this month's progress with those in the past? Previous Project Updates are here for your convenience:

August 2022 - September 2022 - October 2022 - November 2022 - December 2022 - January 2023 - February 2023 - March 2023 - April 2023 - May 2023 - June 2023 - July 2023 - August 2023 - September 2023

For more information contact: Rob Fuller at (707) 365-6891