Holly Anne November 2023

Progress Update

Work is still moving quickly at Holly Anne. During the month of November, we were able to complete the last of the slabs for phase 1. We have completed a number of four-way inspections and have installed sheetrock in some of the homes. We have partial completion of the curb and gutter phases 1 and 2. Phase 2 has officially been approved for 55 lots. We have receded the detention pond, and much of the back of the property.

Construction Update Videos

Progress Images

November Aerial Photos
December Ground
November Ground Photos

Design

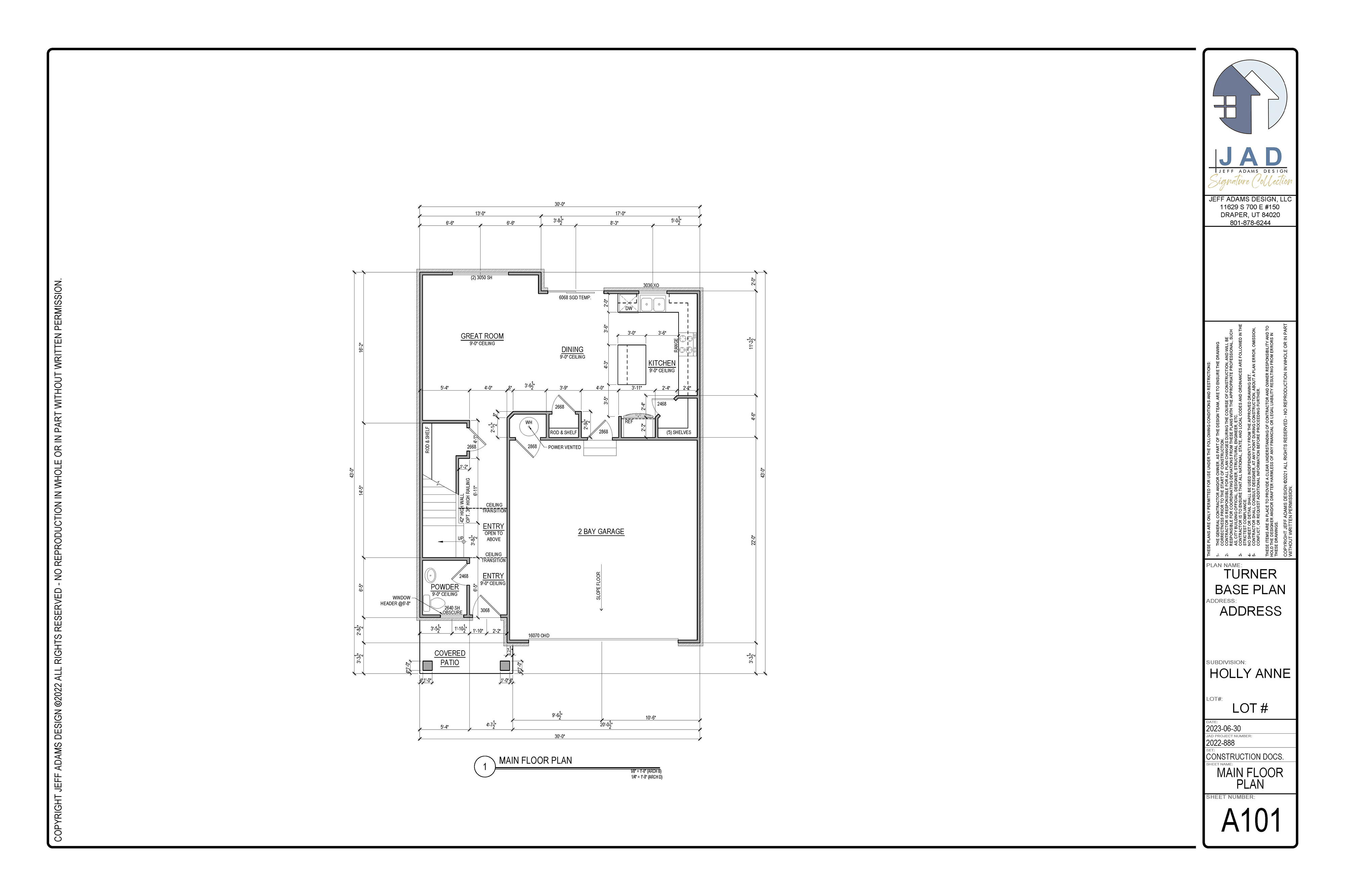
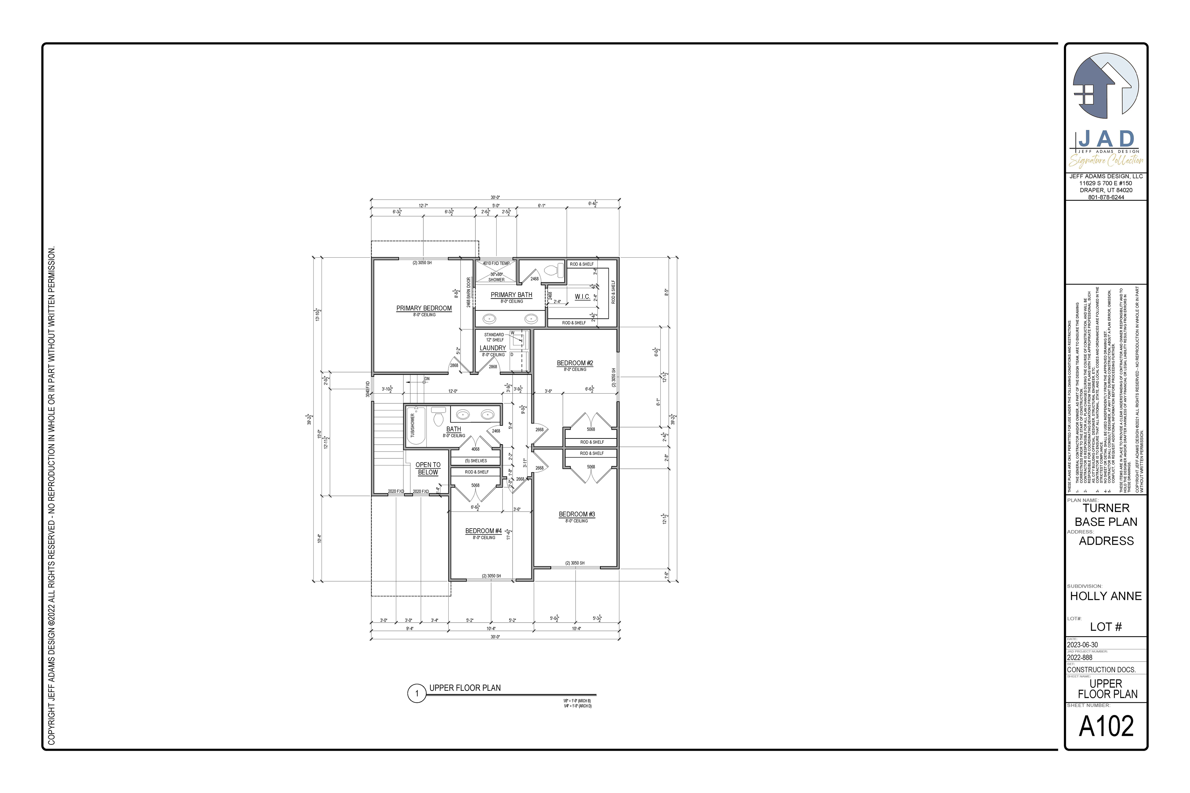
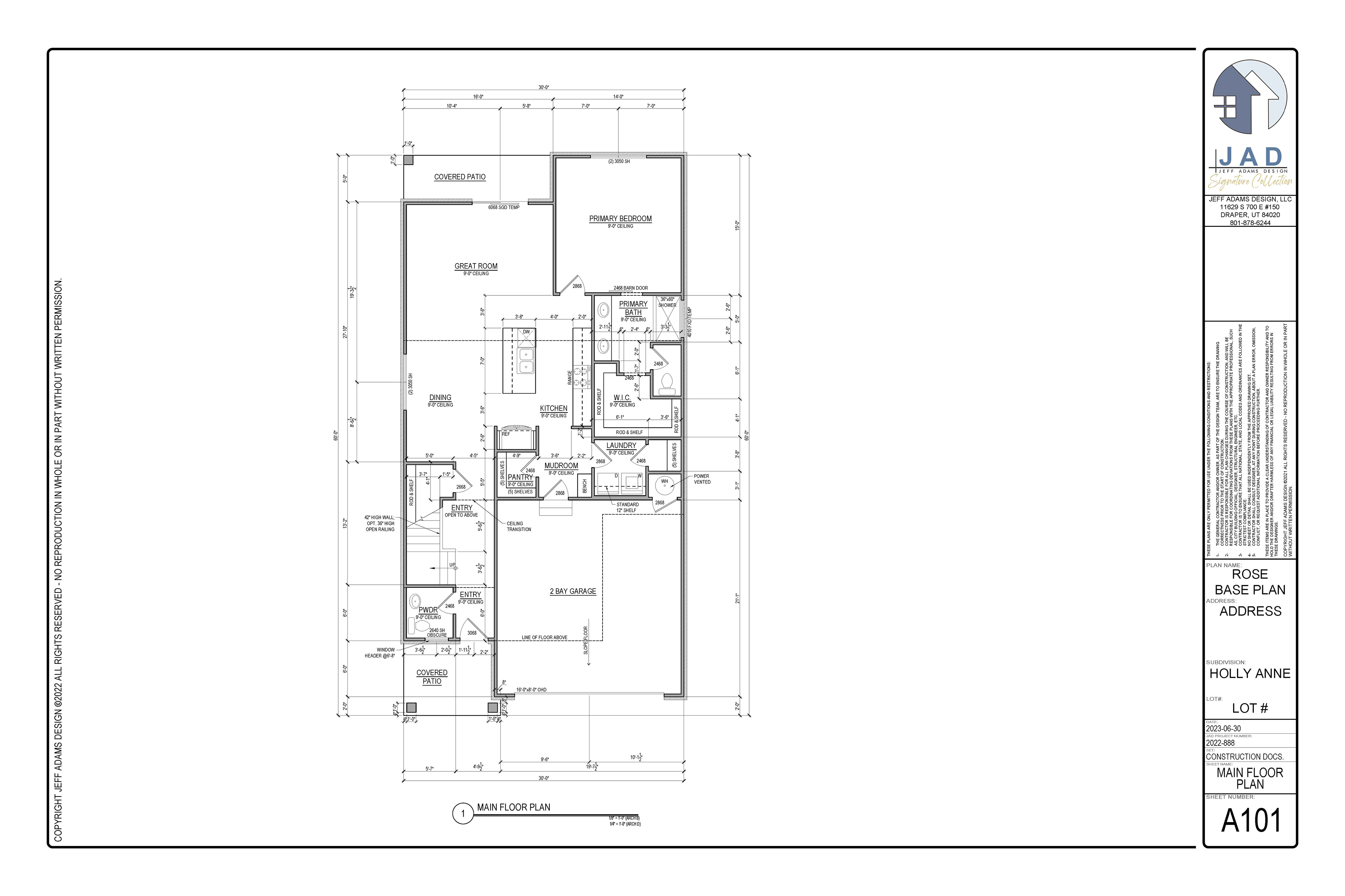
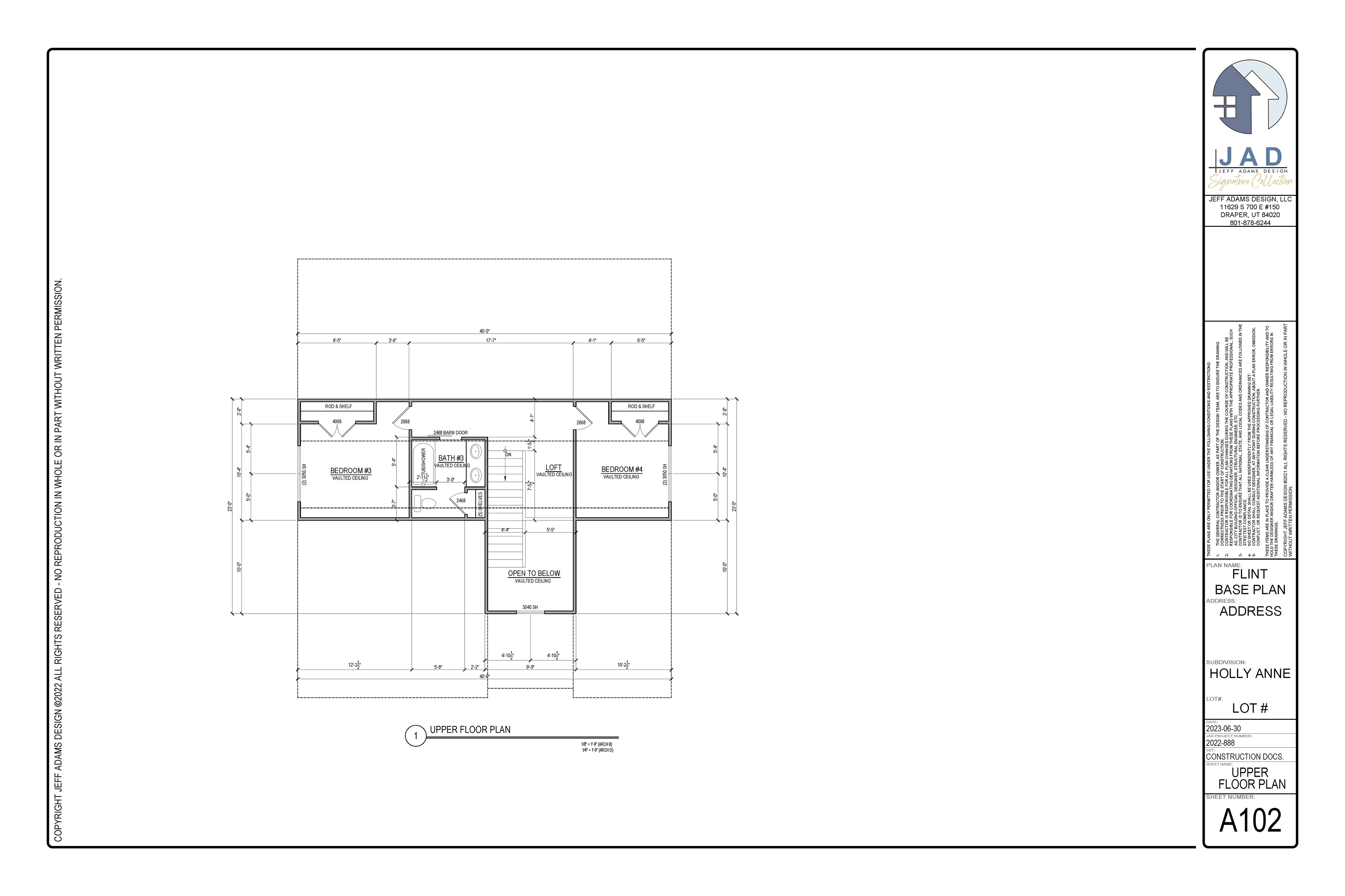
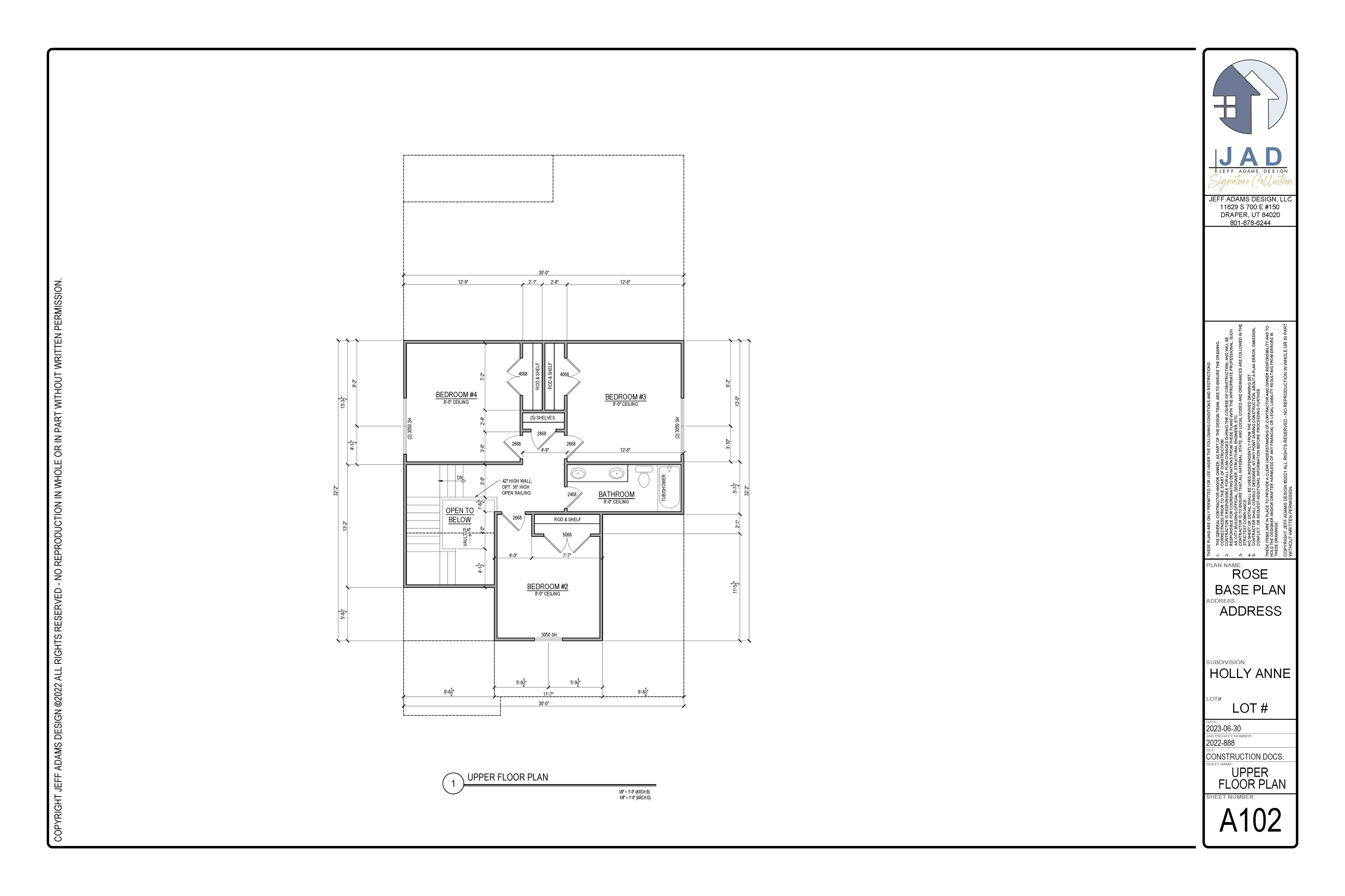
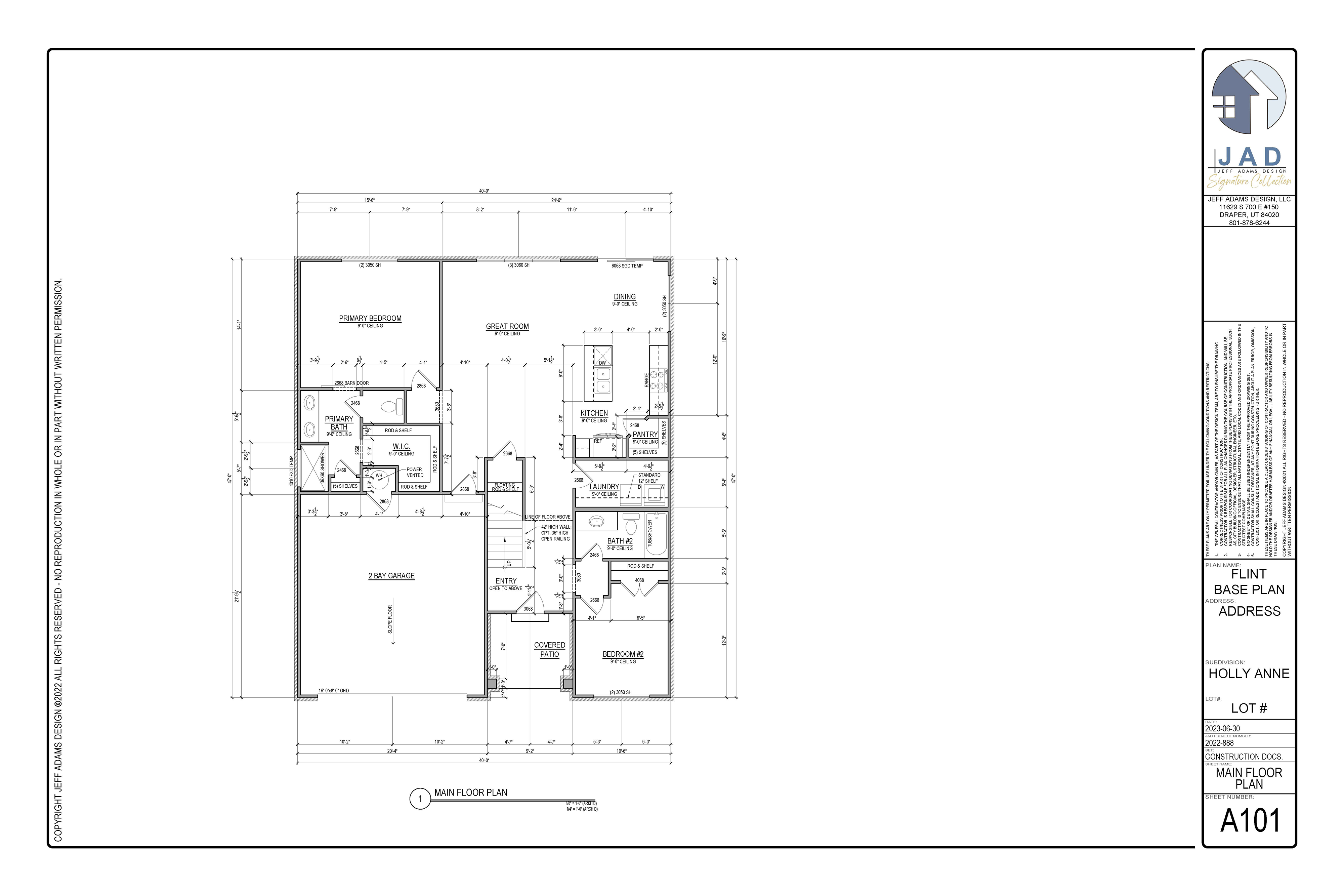
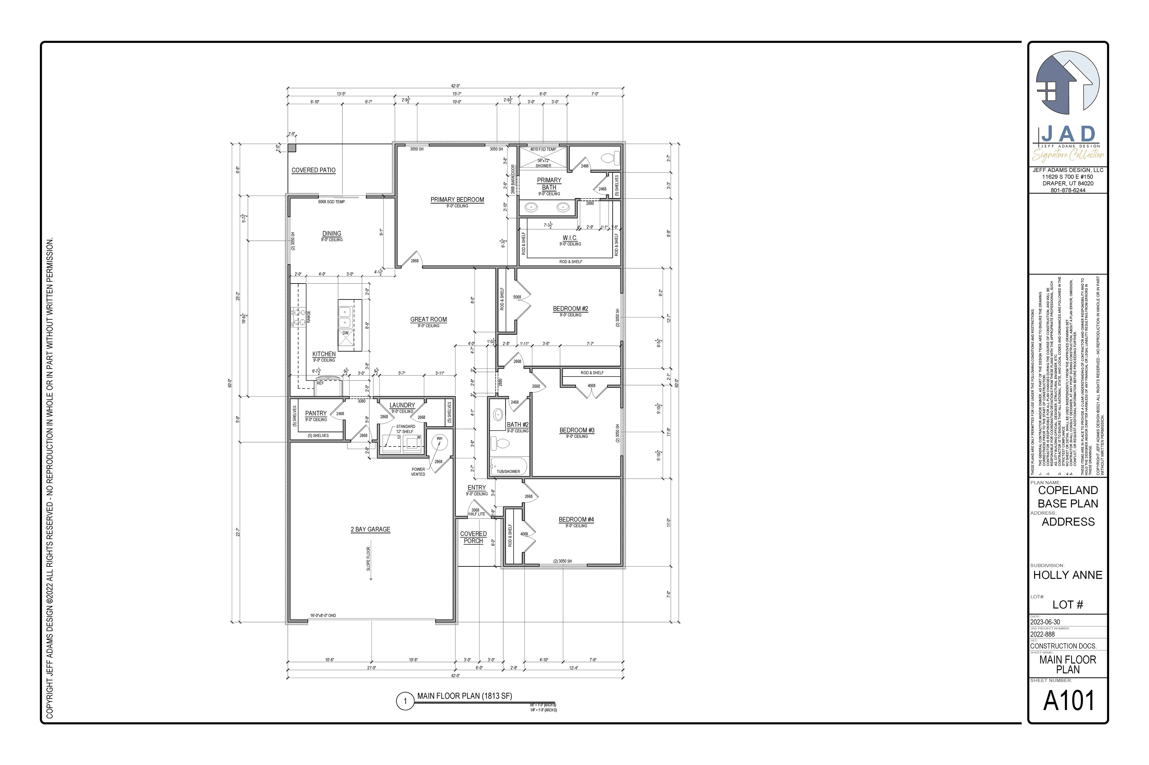
December 15th 3D Flint Floorplan
Designs Subject to Change (Click to View Larger Image)

Past Updates

Want to compare this month's progress with those in the past? Previous Project Updates are here for your convenience:

August 2022 - September 2022 - October 2022 - November 2022 - December 2022 - January 2023 - February 2023 - March 2023 - April 2023 - May 2023 - June 2023 - July 2023 - August 2023 - September 2023 - October 2023