Holly Anne December 2023

Progress Update

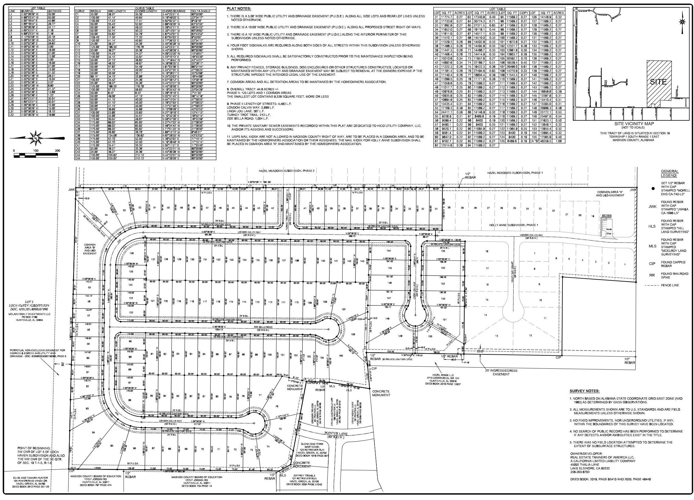
The first four Copeland floorplans have flooring. They also have fixtures being set today and appliances being delivered next week. Landscaping has also been completed on the first four properties and we will be ready to go for a Certificate of Occupancy (CO) soon, barring the completion of the electric line back to the pump station. We widened the turn lane but the remaining thermal striping piece is being corrected. We have four additional houses that have sheet rock being completed and another three with insulation. We also have 10 ready for framing inspection and have all been bricked on the outside and or siding. 25 of the houses have been roughed in with 5 more being worked on. We are anticipating that all 30 phase 1 homes will be done by the end of Q1 at the current pace.

The clubhouse plans have approval once some work on the lot is completed in preparation for vertical construction. Marketing budgets have been approved and the property management company has begun efforts to pre-lease units for a delivery now estimated end of Q1. Trash service has likewise been decided. Fiber for internet has been completely laid through phase 1 and is just awaiting connection to the main box in the Clubhouse. The initial leasing office will temporarily be in the house located next to future clubhouse.

Construction Update Videos

Progress Images

November Aerial Photos
December Ground
November Ground Photos

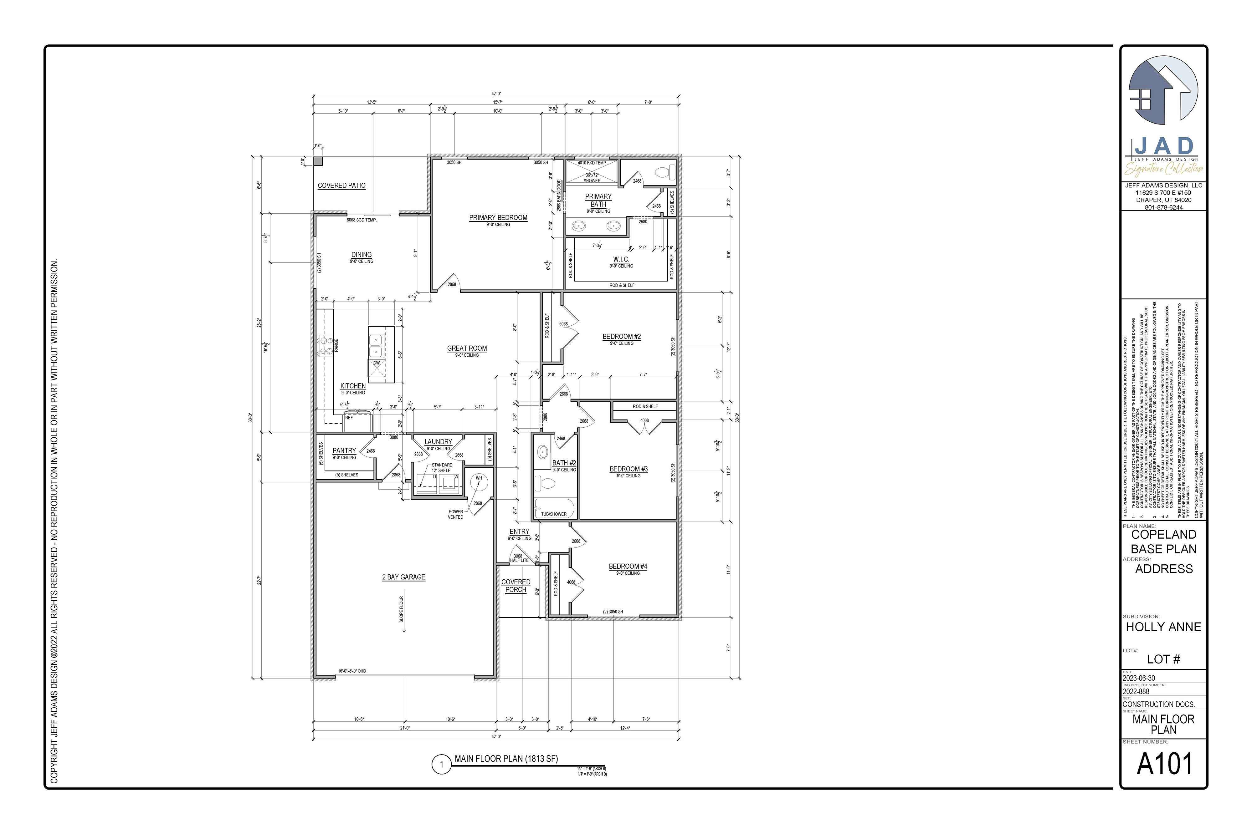
Design

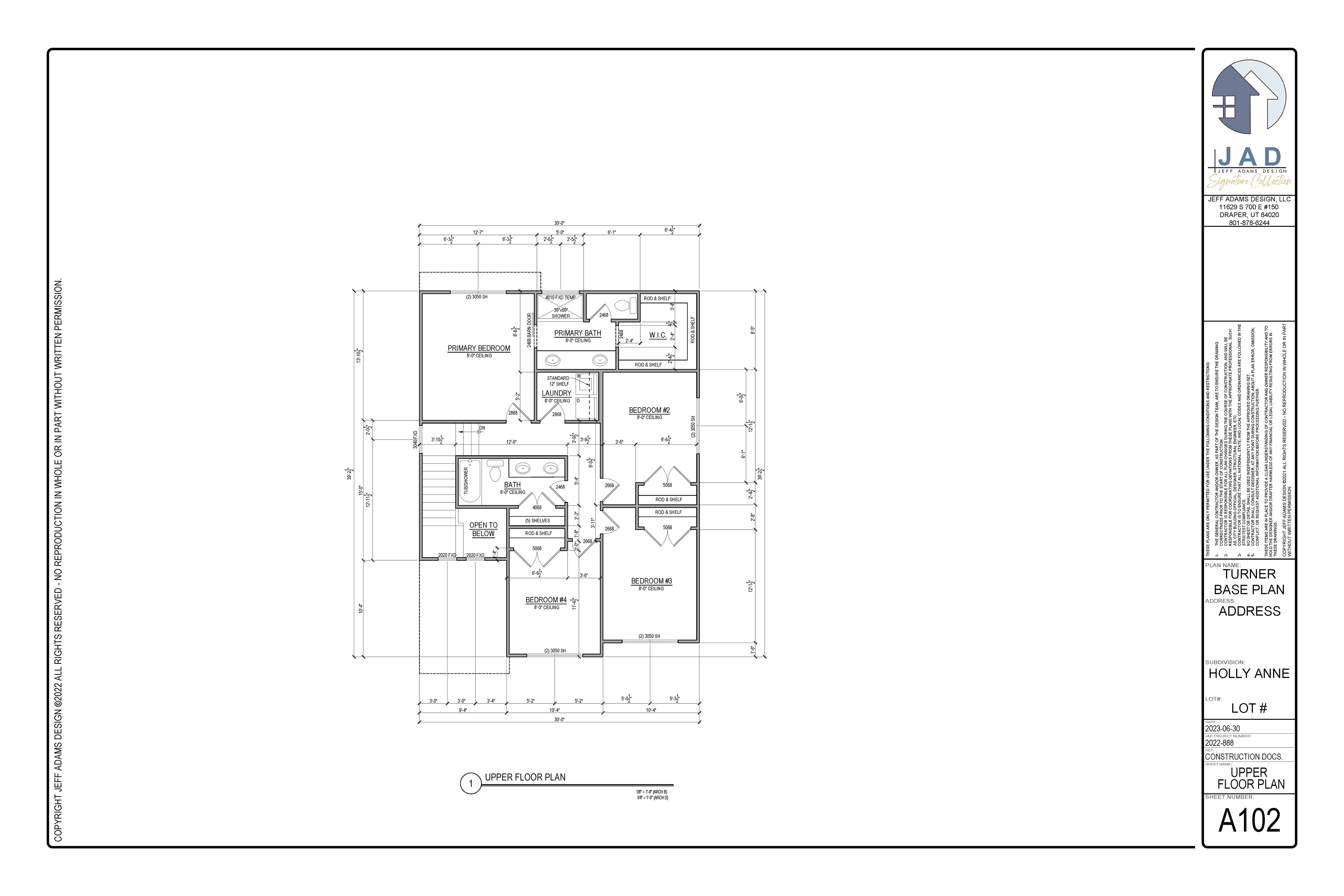
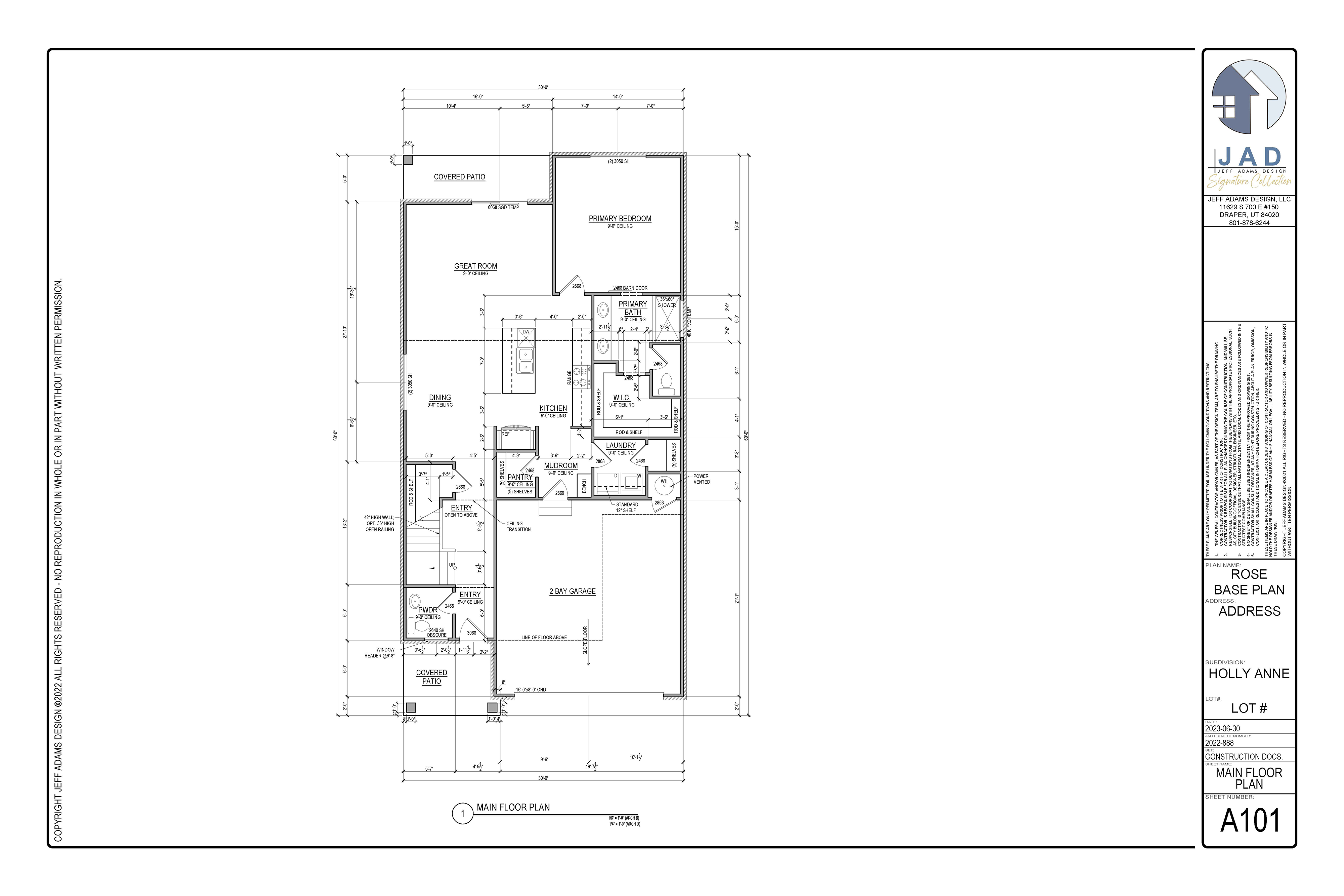
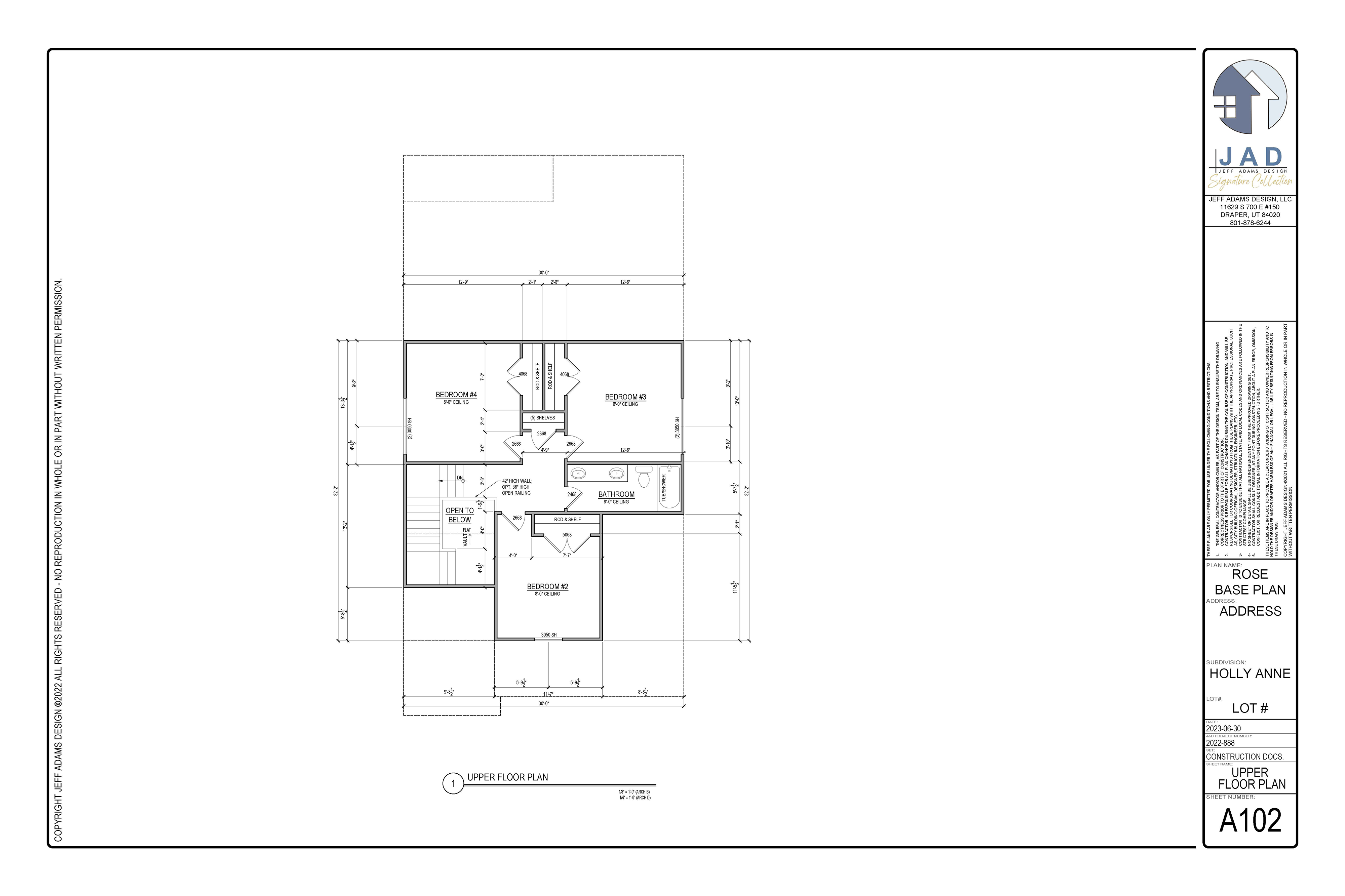
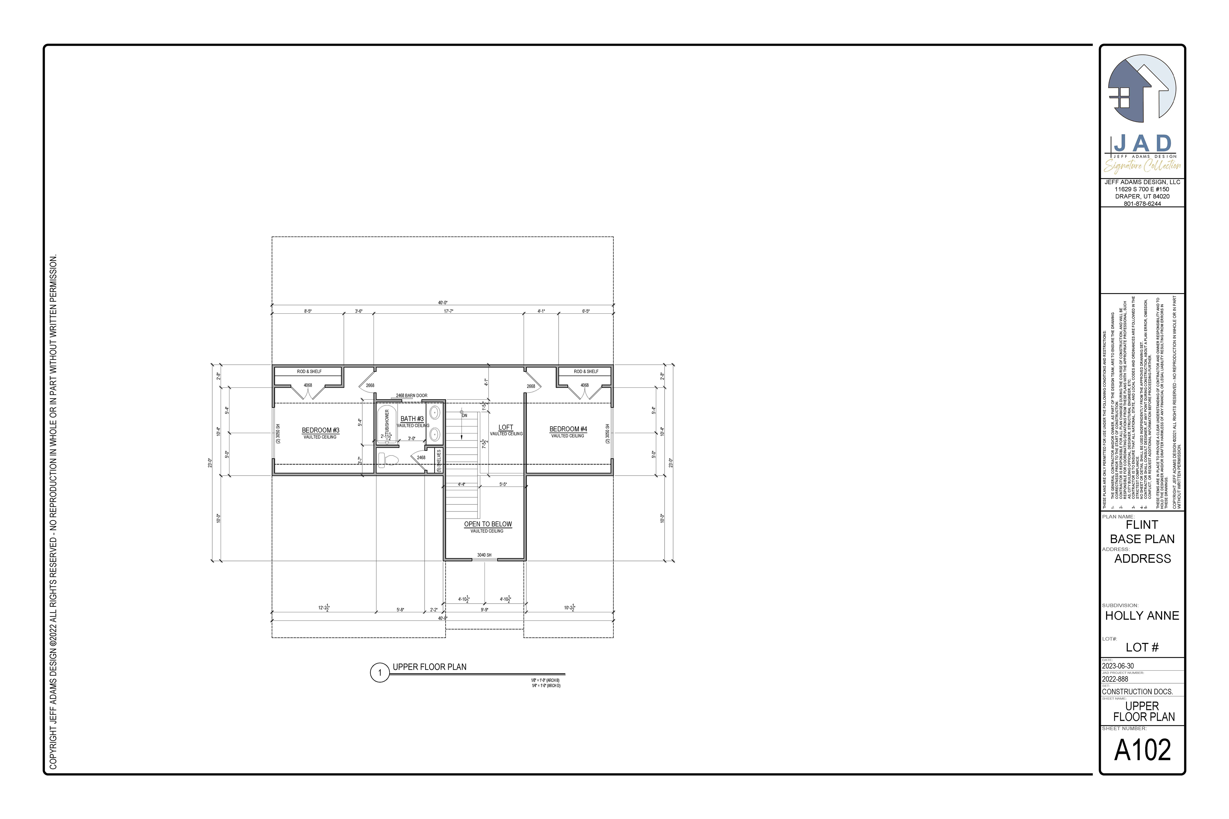
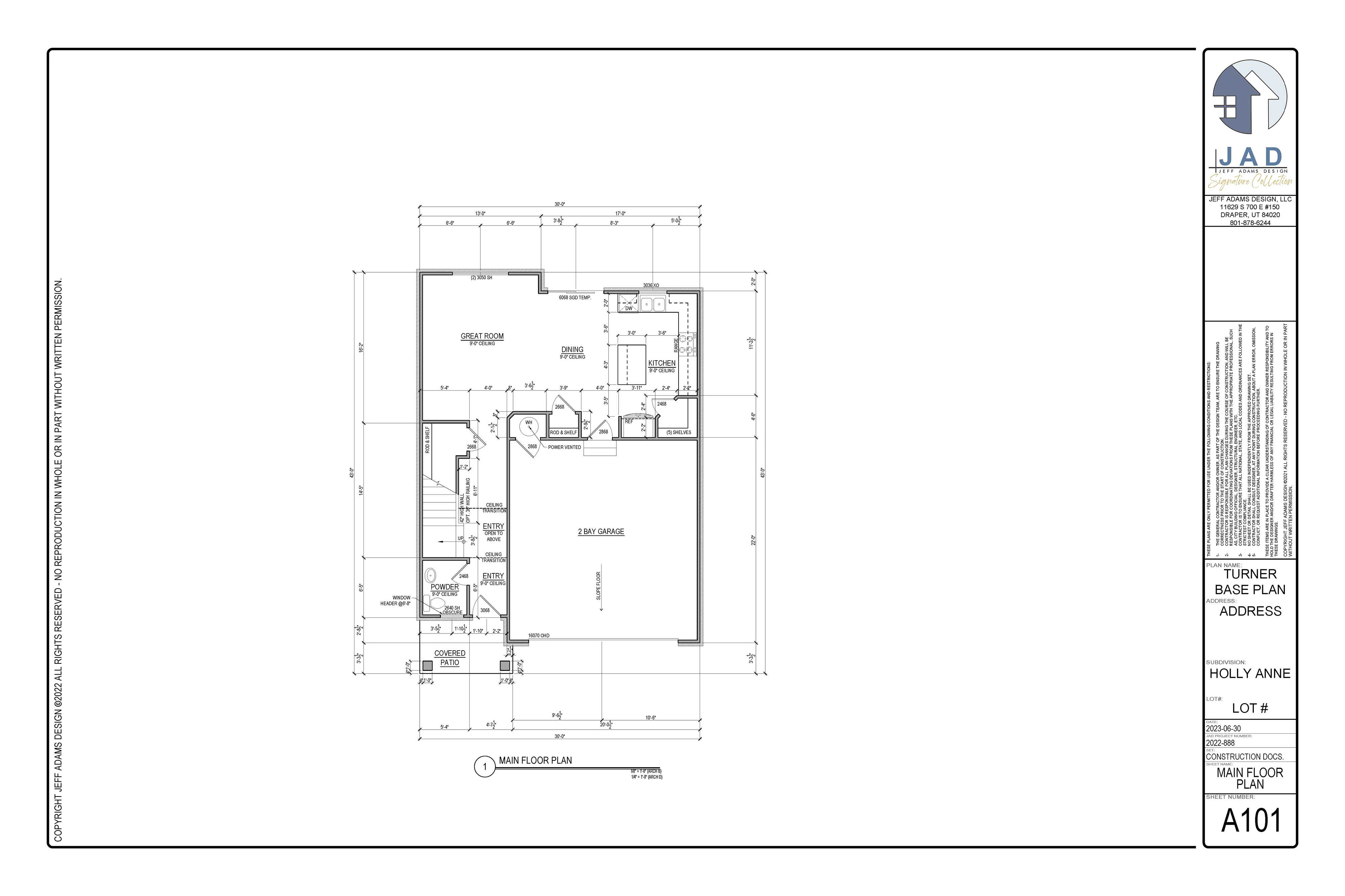
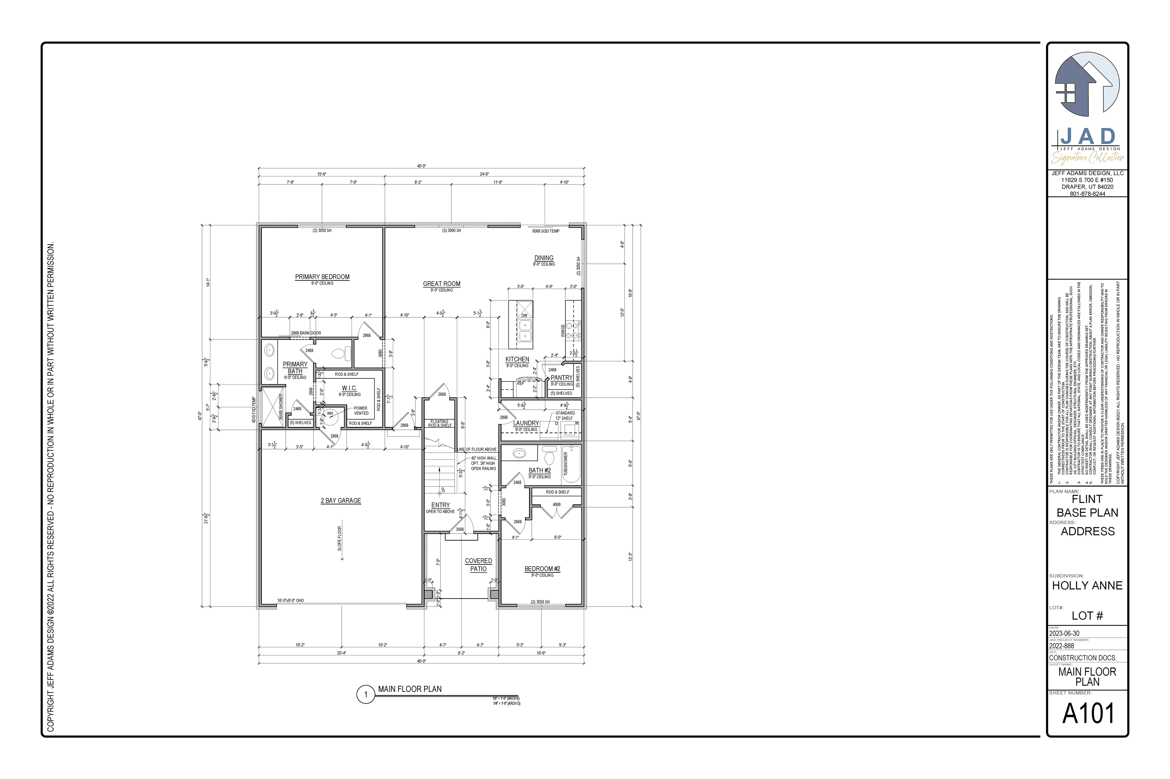
December 15th 3D Flint Floorplan
Designs Subject to Change (Click to View Larger Image)

Past Updates

Want to compare this month's progress with those in the past? Previous Project Updates are here for your convenience:

August 2022 - September 2022 - October 2022 - November 2022 - December 2022 - January 2023 - February 2023 - March 2023 - April 2023 - May 2023 - June 2023 - July 2023 - August 2023 - September 2023 - October 2023 - November 2023